Оригинальные скворечники из дерева своими руками – чертежи, фото
Что может быть приятнее, чем привлечь птиц в свой двор, и каждый день созерцать свободу и красоту дикой природы? Для этого нужно совсем немного: вдохновение, минимум инструментов и материалов. Предлагаем несколько необычных проектов скворечников из дерева, которые станут не только комфортным пристанищем для птиц, но и оригинальным дизайнерским элементом вашего двора или сада.
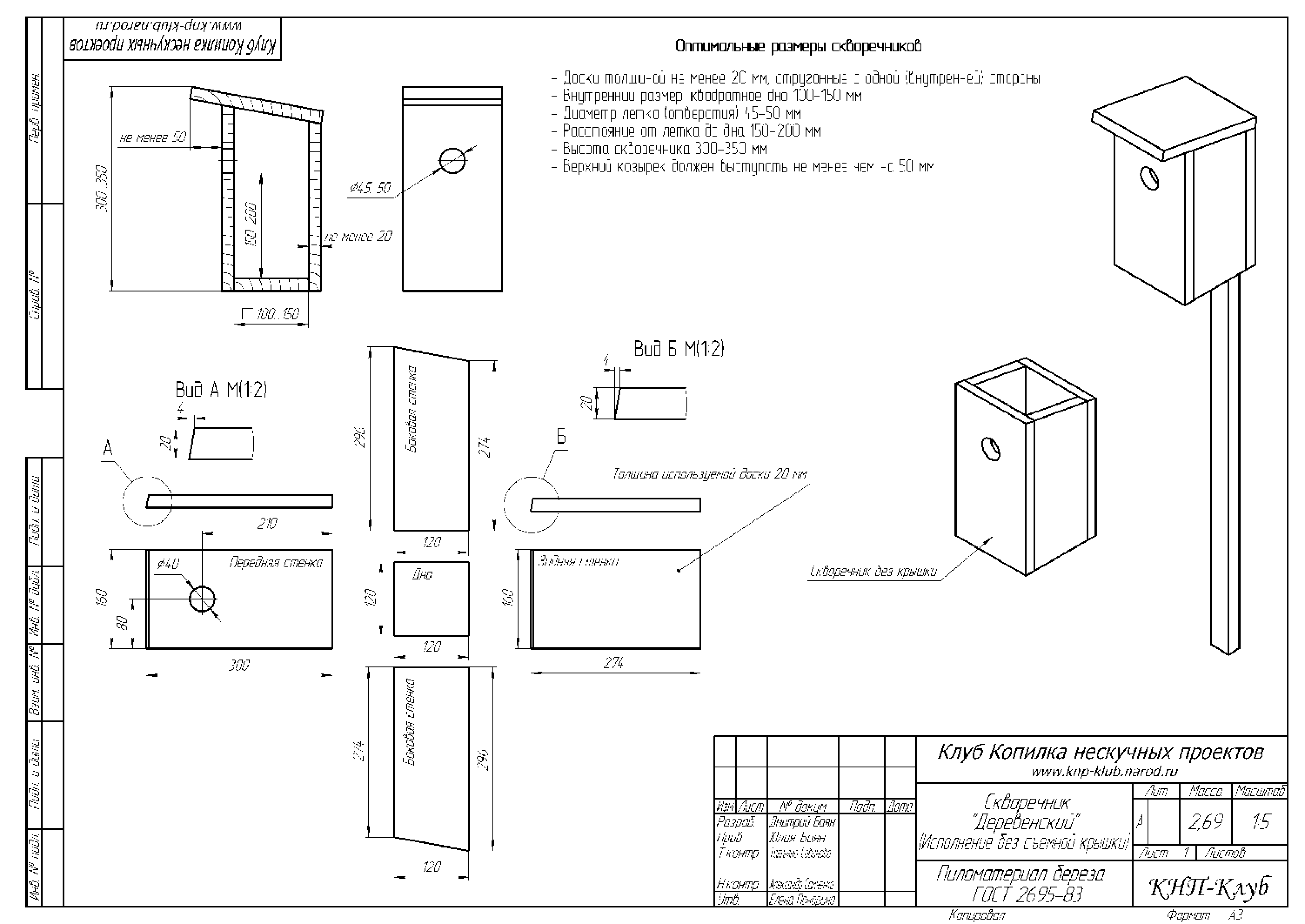
Все скворечники, представленные в статье, являются функциональными изделиями. Чертежи имеют продуманные размеры, поэтому домики могут служить средой обитания для разных птиц наших широт. Удобные схемы помогут наглядно понять, как поэтапно из дерева, фанеры или обрезков вагонки сделать своими руками красивый скворечник, который станет настоящим украшением вашего домовладения.
Чертеж скворечника для небольших птиц
Этот компактный скворечник сделан из обрезков вагонки и небольших кусочков фанеры, толщиной 15 мм. При желании, вы можете использовать любой другой материал.
СКАЧАТЬ ЧЕРТЕЖ В ОРИГИНАЛЬНОМ РАЗМЕРЕ
Классический двускатный скворечник
СКАЧАТЬ ЧЕРТЕЖ В ОРИГИНАЛЬНОМ РАЗМЕРЕ
В идее этого домика для птиц, изготовленного из дерева и фанеры, заложена простая форма с двускатной крышей, но отсутствие лишних изысков не делает его менее привлекательным. Размеры скворечника, отображенные в чертеже, позволяют приютить большое разнообразие птиц и создать им максимально комфортную среду для сезонного обитания. Модель можно вешать как на проволочном подвесе, так и жестко закрепить на дереве при помощи гвоздей.
Скворечник «Лесное дупло»
СКАЧАТЬ ЧЕРТЕЖ В ОРИГИНАЛЬНОМ РАЗМЕРЕ
От других моделей этот скворечник отличается особым шармом и атмосферой дикого леса. Как видно на схеме, технология изготовления данной модели довольно проста, и ее не составит большого труда сделать в домашних условиях. Аккуратно расщепив полено, вы получите все необходимые заготовки для проекта. Конструкция собирается быстро и легко, и что самое главное не требует никакой отделки. Сушеные цветы и шпагат гармонично дополнят фактуру коры и внесут оригинальные штрихи в общий дизайн. Такой скворечник отлично впишется в сад, на даче и на любом другом ландшафте.
Скворечник с кормушкой
СКАЧАТЬ ЧЕРТЕЖ В ОРИГИНАЛЬНОМ РАЗМЕРЕ
Еще одна оригинальная идея скворечника для птиц своими руками. Как видно на фото, конструкция совмещает в себе сам домик и кормушку, надежно защищенную от дождя. Детали проекта имеют простую геометрию, поэтому раскрой заготовок и сборка самого скворечника не займут много времени.
Замковая башня
СКАЧАТЬ ЧЕРТЕЖ В ОРИГИНАЛЬНОМ РАЗМЕРЕ
Креативная идея для скворечника. Грозная средневековая башня станет уютной обителью для птиц и оригинальным украшением территории сада или дачи. Технологическая карта изготовления этого скворечника несложная. Основой выступает обрезок пластиковой трубы, деревянная основа и башенка, созданые по шаблону. Каркас обматывают армирующей сеткой, и наносят на него гипсовый слой. После затвердевания гипса башню дополняют мелкими декоративными элементами (окошками, въездными воротами), красят «под камень» и наносят лаковое покрытие. Скворечник рассчитан на установку под навесом, а из-за уязвимости гипса к температурным перепадам на зиму его лучше снимать.
Скворечник-амбар
СКАЧАТЬ ЧЕРТЕЖ В ОРИГИНАЛЬНОМ РАЗМЕРЕ
Необычный «двухкомнатный» скворечник, стилизованный под амбар. Чертеж скворечника предусматривает множество мелких элементов, но это делает его сборку еще более увлекательной. Размеры, указанные на схеме – адаптируемые.
Вы можете изменять пропорции по своему желанию, чтобы приютить в скворечнике самых разных птиц.
Кормушка в виде беседки
СКАЧАТЬ ЧЕРТЕЖ В ОРИГИНАЛЬНОМ РАЗМЕРЕ
Чертеж еще одного оригинального скворечника из дерева и тонкой металлической жести, который не составит труда сделать своими руками. Необычный дизайн кормушки в виде беседки XIX века дополнит обстановку любого сада или дачи.
Идеи красивых и необычных скворечников
]]>Скворечник своими руками: чертежи, размеры
Если у вас есть свой участок, то привлечение птиц, которые уничтожают вредных насекомых, замечательное решение. Для этих целей вам очень пригодится скворечник. Его можно выполнить даже из разных подручных материалов. Для этого вам понадобятся размеры скворечника, чертеж. Для скворцов и других птиц габариты изделия будут отличаться. И это важно учитывать в своих строительных работах. Давайте рассмотрим варианты конструирования подобных изделий, а также подберем правильные материалы.
Содержание статьи
Из чего сделать скворечник: популярные материалы
Можно изготовить красивый скворечник своими руками из разных подручных материалов. Но самый лучший вариант, конечно же, древесина. Но только подойдут лиственные породы, потому что хвойные слишком смолянистые. При этом смола может испачкать перья птиц, что спровоцирует их гибель. Не лучшее решение использовать фанеру, ОСБ или ДСП. В таких конструкциях редко селятся пернатые. Заготовки лучше собирать с помощью шурупов и гвоздей. Клеевые составы использовать не стоит.
Самые красивые и прочные конструкции выполняются из древесиныВы можете сделать конструкцию из досок или из бревна. На фото показано, как выглядят такие изделия. При этом важно учитывать размеры скворечника, чертежи модель изделия.
Изготовление выполняется из досок, толщина которых не менее 20 мм. Такие параметры важны для поддержания необходимой температуры для выведения потомства.
Доски рекомендуется использовать не струганные. При этом внутренняя поверхность должна быть шершавой. Рекомендуется специально поцарапать переднюю часть под летком. Это облегчит поднимание птиц наверх.
скворечник
Можно соорудить конструкцию и из подручных материалов, но при этом важно соблюдать определенные правила.
Устройство скворечника должно иметь вытянутую полость, с глухим дном и съемной крышкой. Под крышей располагается леток, специальное отверстие для птиц.
Схема простого изделия. Такое чаще всего выполняется из древесины или фанерыКрышка должна быть съемной для удобного осмотра и чистки изделия. Кроме того, внутрь могут залезть и нежелательные животные.
Птичий домик должен удовлетворять таким требованиям:
- быть непрозрачным и прочным;
- стенки должны быть шероховатыми, чтобы птенцы могли передвигаться за кормом, который приносят родители;
- материал должен хорошо держать тепло, быть умеренно звукопроницаемым и в нем не должно быть щелей.

В таблице можно представлены стандартные и оригинальные материалы для изготовления птичьего домика.
Скворечник из дерева: естественность и надежность
В природе многие птицы селятся в дупла, которые делают дятлы, поэтому и искусственные жилища не должны иметь большие размеры.
Определяясь, как сделать конструкцию своими руками, прежде всего, нужно выбрать правильный материал. Чаще всего применяются доски из лиственных пород. Самый лучший вариант: ольха, береза или осина.
Необычная постройка из древесиныДругие материалы обладают разными недостатками. Например, ДВП и ДСП могут выделять токсичные вещества, а фанера плохо держит тепло.
Вариант кормушкиНа фото можно видеть, как сделать простую конструкцию. Перед работой сделайте чертеж с размерами. Качественные и простые схемы и чертежи вы можете найти в интернете. Это позволит уменьшить расход материалов, а также выполнить правильный раскрой.
Простейшая конструкцияСхему можно перенести на заготовки из дерева.
Затем подготовьте такие материалы:
- доски лиственных пород в необработанном виде;
- длинные и тонкие гвозди;
- специальные пропитки и безопасные краски;
- в качестве инструментов понадобится молоток, ножовка, рулетка, карандаш и кисточка.
Все заготовки вырезаются по чертежам. Доски необходимо стругать только снаружи, а внутри они должны оставаться шероховатыми. В передней стене высверливается отверстие. К задней стене монтируется планка, за которую домик крепится в подходящем месте.
Сложная конфигурацияК сведению! Крышу нужно сделать выступающей, чтобы она защищала вход от дождевой воды.
скворечник
Скворечник из картона: простота изготовления
Такой вариант часто используется, как декоративный домик. Это больше игрушка для детей. Картонный домик годится на один сезон. Лучше для его создания выбрать плотный гофрокартон.
Итак, давайте выясним, как сделать такую конструкцию своими руками. Кроме гофрированного картона понадобится бечевка, крахмал и бумага с ламинированным покрытием. Значительно облегчит работу заранее сделанный шаблон с размерами.
Схема для картонного изделияПорядок сборки изделия имеет свои особенности:
- выполняется разметка заготовок, а затем детали вырезаются в двойном количестве;
- из крахмала делается клейстер;
- все детали склеиваются парами. В передней части проделывается отверстие. А в задней стене прорезаются отверстия под бечевку;
- все стенки клеятся встык;
- крыша делается из двух элементов.
Чтобы конструкция прослужила дольше. Рекомендуется оклеить ее ламинированной бумагой.
Скворечник из бумаги: декоративные функции
Многим интересно, как сделать простой скворечник из бумаги своими руками. Такой материал подходит только для декоративных идей. Существуют разные схемы необычных моделей.
Такие домики украшают акриловыми красками. Можно сделать целую композицию, например «времена года». Кроме рисования можно применить технику декупаж или аппликации. Всю эту красоту можно покрыть лаком.
Рождественская тематика подойдет для январских праздников. Это может стать замечательным украшением сада. Можно таким способом сделать кормушки, но не жилье для птиц.
Бумажные поделкиСкворечник из бутылки: вариант временного жилья
Чтобы сделать любой скворечник, чертеж и размеры необходимо узнать и подготовить заранее. Изделие из пластиковой бутылки, сделанное своими руками, считается наиболее доступным.
Это вариант лучше использовать в качестве кормушки или как декоративное украшение сада ландшафтного дизайна. Выбор вариантов, как сделать такое приспособление не отличается разнообразием. В крышке проделываются два отверстия под проволоку. Снаружи пластиковую поверхность можно оклеить или покрасить.
Дизайны моделей из пластиковых бутылок вы можете посмотреть на фото.
Скворечник из фанеры: удачный ли вариант
Можно сделать птичий домик своими руками из фанеры. Такой вариант подходит, как временное жилище или как садовый декор. Решая, как сделать такую конструкцию, сначала продумайте чертежи и размер изделия. Все элементы переносятся со схемы на фанеру. При этом верхняя часть должна выступать в виде козырька. Все срезы нужно отшлифовать. Элементы соединяются при помощи саморезов и клея. При этом необходимо боковые стенки и фасад склеить, а затем дополнительно скрепить изделие саморезами. Крыша должна быть съемной, так как внутренние полости необходимо периодически чистить.
Затем изделие можно украсить по своему вкусу.
Вариант из фанерыСкворечник из коробки: удобство и простота
Как сделать конструкцию из коробки своими руками будет интересно узнать тем, кто не хочет тратить много времени на работу. Это несложный вариант, но его хватает ненадолго и лучше его использовать в качестве кормушки для пернатых.
Материалы можно купить или просто взять небольшую коробку.
Сначала следует закрепить прочную крышу, а затем вырезать необходимое отверстие. Его края можно обклеить скотчем. В качестве задней стенки можно применить фанеру, так как она должна быть особенно прочной. Изделие стоит покрасить влагозащитной краской, но без запаха. Затем изделие крепится на основу.
Из подобного варианта делается кормушкаВыбираем правильные размеры скворечника
Если вы не знаете, как правильно сделать птичий домик, то сначала вам необходимо выяснить: какие должны быть размеры конструкции по госту. Делаем изделие с учетом того, что для разных птиц размеры конструкции будут отличаться.
Чертежи с основными размерамиРешая, как построить изделие своими руками, выберите для начала простую конструкцию, имеющую стандартные размеры для скворечника.
Прежде чем выполнять чертеж и размеры, учтите ряд некоторых условий:
- диаметр отверстия в скворечнике должен равняться около 50 мм;
- высота сооружения варьируется в пределах 30-35 см;
- длина от отверстия до дна должна составлять не менее 20 см;
- дно должно быть не менее 15*15 см.

Используя данные параметры, можно построить крепкие скворечники для птиц своими руками. Чертежи предполагают обозначение всех элементов. Приведенные размеры больше подходят для таких птиц, как воробьи и скворцы. Также на чертеже необходимо проставить размеры летка. На фото можно посмотреть, какой вид имеют подобные конструкции.
Размеры скворечника для скворцов
Выполняя скворечник своими руками для скворцов, нужно учитывать, что это довольно крупная птица. Такая конструкция должна быть глубже и больше других вариантов. Чтобы правильно выполнить чертеж, необходимо выяснить основные размеры изделия.
Большое значение имеет размер отверстия в скворечнике. Он должен быть около 5 см. Высота кормушки или скворечника должна быть 35-40 см. Размеры дна должны быть около 15*15см. Леток лучше делать круглой формы. При этом диаметр отверстия в скворечнике для скворца зависит от общих габаритов конструкции.
Синичник: чертеж и размеры, некоторые особенности
Как сделать конструкцию синичника зависит от выбранных материалов и его размеров. Существуют стандартные размеры скворечника для синиц. Дно должно иметь габариты 10*12 см, высота конструкции 25-35 см, а размеры летка около 30-35 мм. Глубина изделия должна быть около 50 см. С помощью этих данных выполняются чертежи.
На дно птичьего жилища рекомендуется насыпать опилок, а стенки внутри стоит окрасить темными красками.
Чертеж постройки для синицыВот такой синицын домикК сведению! Такой домик нужно крепить на лиственных деревьях, обладающих густой кроной. Это стоит делать на высоте 3-4 метров.
Домик для трясогузки: чертеж и размеры
Выполняя домик для птиц трясогузок своими руками, также понадобится знать рекомендуемые размеры. Дно необходимо сделать размерами 10*8 см, а высота такой конструкции выполняется в пределах 20 см.
Леток имеет размеры около 35-40 мм. Решая, как сделать, такую конструкцию, стоит учитывать, что леток должен иметь вид щели, ширина которой не более 40 мм.
Подобные изделия ребята мастерят на уроках труда. При этом используются специальные чертежи. Особенной чертой такой конструкции является наличие площадки у входа, ширина которой около 10 см.
Чертеж домика для трясогузкиК сведению! Подобные постройки вы можете разместить не только на дереве, но ирод крышей дома или на верхней части забора.
Как сделать скворечник самостоятельно
Как изготовить самый простой вариант для птиц вы можете посмотреть на видео ниже.
Вы можете попробовать сделать простой красивый скворечник своими руками с плоской крышей.
Для этого понадобятся неструганные доски. Делаем такую конструкцию только в перчатках. Это позволит избежать появления заноз. Спилы должны быть ровными и нельзя допускать наличия щелей. Помните, что вылупившиеся птенцы не имеют оперения, поэтому могут погибнуть от сквозняка.
Чтобы процесс изготовления не занял много времени, рекомендуется заранее сделать чертеж скворечника с размерами. Плоская крыша не требует особых усилий. Она просто должна плотно вставляться.
В домашних условиях можно сделать и дуплянку или птичий домик из бревна. Такой вариант больше похож на обычное жилье для пернатых. Это можно видеть на фото. Кроме того, такие конструкции практически не заметны на дереве, что делает их более безопасными для проживания. Такое изделие также можно сделать по схеме. Для этого можно использовать кусок погибшего дерева. В этом случае сердцевину придется выковыривать вручную. Хорошо, если попадется бревно с целыми краями и гнилой серединой. Это ускорит работу.
Схема работПодобная древесина обладает сгнившей корой, которую необходимо очистить. Затем бревно распиливается на подходящие чурбаки. Для птичьего домика внутренний диаметр должен быть 25-30 см, а наружный 30-36 см. Для синичника внутренний размер дупла должен быть 15-25 см, а наружный – 20-30 см.
При распиливании скос снизу нужно делать ровным, а в верхней части под небольшим наклоном. Это позволит стекать осадкам с крыши. Для крыши используйте обрезки от досок. Середину в бревне можно выковыривать при помощи стамески. Для облегчения работы просверлите несколько отверстий, а затем проковыряйте перемычки. Стенки должны остаться толщиной 1,5-3 см. Внутренности должны быть гладкими без крупных сколов. Дно состоит из кусков толщиной 2,5 см. Его прикручивают саморезами. В завершение прибивается крышка.
К сведению! Жердочка не всегда хорошее решение для птичников, так как на них могут опираться кошки, чтобы доставать лапой птенцов.
Как построить скворечник своими руками
Давайте узнаем, как правильно сделать скворечник. Рабочий процесс вы может посмотреть на видео ниже.
Как самому сделать скворечник и его конструкция зависит от того, куда его будут подвешивать. Если крепление будет выполняться на столб, под крышу дома или балкон, то стоит запланировать специальные жердочки.
Если конструкция будет крепится к дереву, то птицы могут прогуливаться и по веткам.
Для строительства домика из дерева своими руками понадобятся определенные материалы. Кстати, вы можете и купить набор скворечник своими руками в специализированном магазине.
Вот какие инструменты и материалы вам потребуются:
- доски и бруски;
- клей для столярных работ, саморезы и гвозди;
- молоток, стамеска, сверло, ножовка и дрель;
- карандаш и линейка.
Как делать простую конструкцию, можно посмотреть на фото. Также выполнить красивые домики для птиц помогут чертежи и схемы.
Прежде чем сделать такую конструкцию, нужно выполнить заготовки. Для этого на досках по чертежам производятся разметки. Правильный домик предполагает разметку размеров крыши, стен, дна и отверстий. При выполнении заготовок вам помогут такие рекомендации:
- так как крыша выполняется с уклоном, то передняя стена делается на 4 см длиннее остальных, а боковые обрезаются со скосом;
- дно делается в виде квадрата со сторонами 13 см;
- крыша делается из двух разных элементов.
Одна часть делается, как и дно, а с помощью второй создается навес.
Выпиливание выполняется аккуратно. Все парные детали должны быть одинаковых размеров. Что снаружи домик имел декоративный вид, доски нужно обстрогать. Отверстие лучше делать круглой формы, чтобы оно походило на дупло.
Затем выполняется сборка конструкции. Для этого нужно скрепить боковые стенки и передний фасад. Это делается с использованием столярного клея. В качестве дополнительного укрепления применяются гвозди и саморезы. Затем крепится дно скворечника. В завершение присоединяется задняя стенка. При этом важно следить, чтобы между элементами не было щелей. Если крыша съемная, то детали фиксируются только друг к другу. А крыша в этом случае монтируется про помощи резины или специальных шарниров.
Готовое изделие можно к подходящей поверхности прибить гвоздями или примотать проволокой. Чтобы облегчить выход для птенцов, конструкцию рекомендуется прикрепить с небольшим наклоном вперед.
Существуют и необычные виды скворечников. Декоративные варианты можно использовать для украшения сада, двора и даже отнести в детский сад.
Вот некоторые оригинальные решения:
- необычный домик для птиц можно сделать из старого бочонка. При этом можно проделать отверстие, а затем украсить конструкцию;
- можно сплести красивые изделия из поросли ивняка. Техника плетения идентична способу плетения корзин. Но домик в верхней части должен сужаться. Крыша должна выступать по краям на 3-5 см.;
- для гнезда необычного вида можно использовать пробки. Они плотные, замечательно крепятся и сберегают тепло. Они могут применяться для отделки готового каркаса. Приклеить элементы можно при помощи горячего клеевого состава;
- декоративный домик можно сделать из тыквы. При этом необходимо вытащить мякоть, прорезать необходимое отверстие, а сверху приделать навес;
- красивый и декоративный вариант получается из кашпо.
Для этого его нужно оплести прочной веревкой;
- из совсем необычных вариантов можно отметить изделие из старой обуви;
- б/у сосуды с горлышками. При этом горловина разворачивается вниз;
- неплохое решение использовать тубусы.
Как украсить скворечник своими руками
Скворечник может стать не только полезным предметом, но и ее замечательным декоративным элементом. Давайте рассмотрим, как можно разукрасить птичий домик.
Как смотрятся необычные скворечники демонстрируют фото. Подобные изделия вы можете сделать всей семьей. Для детей можно сделать изделие с картинкой. Например, подойдут красивые цветы, орнаменты или можно изобразить как выглядывает скворец в скворечнике.
Украшение краскамиИспользуя оригинальные идеи, необходимо помнить, что такое изделие не должно привлекать внимание разных хищников. Не стоит также злоупотреблять с разными блестящими и шуршащими деталями, которые могут испугать пернатых друзей.
Необычный декор можно выполнить с помощью винных пробок. Данный материал имеет пористую, но прочную структуру, которая неплохо защищает конструкцию от влаги. Кроме того, подобное покрытие позволяет сохранять тепло. А также пробку легко и просто обрабатывать.
Чтобы сделать такой вариант вам понадобятся пробки, готовый каркас, прибор с горячим термоклеем и прутики. Не стоит прибивать или прикручивать такие элементы. Так как кончики шурупов могут проникать через стены и поранить птичек.
Работа проводится так:
- клеевой состав наносится на пробки, которые приклеиваются рядами к стене;
- пробки клеятся до самой крыши. В узких местах можно применить части пробок;
- с фасадной стороны центральный ряд можно выложить вертикально;
- для крыши можно пробки разрезать пополам и выложить на поверхность по типу черепицы.
Бортики конструкции и стыки можно украсить прутиками, мхом или кусочками пробки. Какие красивые скворечники получаются, можно видеть на фото.
Не все знают можно ли красить такие конструкции красками. Лучше использовать влагоустойчивые составы без запаха. Как раскрасить поверхности акриловыми красками, можно видеть на фото.
Статья по теме:
Поделки для сада своими руками. Изучайте с помощью этой статьи, как создают оригинальные поделки: все новинки представлены с описаниями. Понравившиеся варианты можно легко будет повторить с учетом собственных навыков и желаний.
Как правильно установить скворечник
Важным моментом является, как закрепить скворечник на дереве, чтобы в нем поселились птицы и чувствовали себя комфортно. Важно знать, на какой высоте крепятся постройки, и в какую сторону должны смотреть.
Есть определенные правила, которые необходимо соблюдать.
Итак, вот важные рекомендации:
- установку лучше производить в начале апреля;
- на даче или в деревне домик можно разместить на высоте 3-4 метра, а вот в городских условиях лучше на 8-10;
- необходимо знать, куда должен смотреть скворечник.
При этом выбирается сторона с минимальным количеством ветром; - решая, как правильно установить скворечник относительно сторон света, нужно учитывать, что на домик не должна падать прямые солнечные лучи;
- поблизости не должно быть крупных веток, по которым могут пролезть коты и другие хищники;
- постройку нужно размещать вертикально или можно с небольшим наклоном вперед;
- важно обеспечить легкий доступ для того, чтобы обеспечить должный уход конструкции.
Есть и определенные нюансы, как крепить скворечники к дереву. Вот основные методы крепления:
- вбивается гвоздь средних размеров. Затем на него навешивается петля из проволоки, которая загибается и забивается в ствол. Это защитит от слетания петли. После этого домик размещается в петле;
- можно прибить конструкцию с помощью гвоздей со стороны торца;
- в столб можно вбить четыре гвоздя. При этом два размещаются в нижней части и два сверху. Между ними устанавливается кормушка и прижимается к поверхности столба;
- если дерево живое, то домик можно прикрутить проволокой или веревкой.
Для лучшего крепежа к задней части скворечника крепится планка.
Не забывайте, что использование гвоздей может причинить вред поверхности деревьев.
Кстати, можно предпринять кое-какие меры и для защиты от хищников. Гнезда птиц могут разорять не только коты, но и птицы.
Крепление на столбеВажно чтобы кот не мог дотянуться до отверстия. В этом случае рекомендуется увеличить свес крыши. Лучше если козырек будет иметь длину не менее 7 см. Этот же выступ станет спасением и от косого дождя.
Установка постройки под крышей домаЧтобы дятел не смог расширить леток, его рекомендуется оббить жестью. Также в целях защиты делаются специальные пояса. Их можно выполнить из жестяных поясов или из веников.
При правильном подходе красивый скворечник станет не только замечательным местом для обитания птиц, но и великолепным украшением для приусадебного или дачного участка. Преимуществом самодельных конструкций является то, что вы их можете делать всей семьей с детьми.
ПостройкиКачели детские для дачи уличные: практичные конструкции и оригинальный дизайн
СледующаяПостройкиНавес на дачу для машины: виды, материалы, изготовление
Понравилась статья? Сохраните, чтобы не потерять!
ТОЖЕ ИНТЕРЕСНО:
ВОЗМОЖНО ВАМ ТАКЖЕ БУДЕТ ИНТЕРЕСНО:
Скворечник своими руками: чертежи, размеры, лучшие материалы
Вместо сомнительных химических соединений можно использовать безопасные «экологически чистые» средства. Для эффективной борьбы с гусеницами, жуками и другими вредителями достаточно привлечь на свой земельный участок скворцов. Эти и некоторые другие виды птиц способны уничтожать не только насекомых, но и личинки. Единственное что потребуется – качественный, сделанный своими руками, скворечник. Чертежи и размеры конструкции, технологии изготовления и полезные советы вы найдете в этой статье.
Чтобы получить нужный результат, надо создать комфортные условия для проживания птицЧитайте в статье
Из чего сделать скворечник: лучшие материалы
Чтобы уточнить размеры скворечника, чертеж для скворцов надо создавать с учетом особенностей обитания в естественных условиях.
Рекомендуется учесть следующие факты:
- Обычно эти птицы вьют гнезда, либо используют дупло, выдолбленное дятлом в дереве. Им не нужен чрезмерный простор, поэтому достаточно создать небольшое внутреннее пространство жилья.
- Для выращивания птенцов потребуется отсутствие сквозняков, хорошие тепло- и звукоизоляционные характеристики стен.
- Не следует забывать о естественных врагах. Следует обеспечить достаточно надежную защиту от кошек.
- Надо обеспечить удобство проникновения в скворечник и свободного вылета.
- Следует исключить неприятные запахи,вредные для биологических организмов испарения.
- В конструкции не должно быть острых выступов, дефектов, способных поранить птицу.
На этом фото видно, что птицам нравится неказистое на вид сооружение. Оно сделано из натуральных природных материалов, без лаков и красок. По своим параметрам жилье получилось близким к естественным условиям, поэтому соответствующие конструкции так и называют: «дуплянки».
Изготовление не сопровождается лишними трудностями. В подходящем чурбаке удаляют сердцевину, вырезают отверстие для летка. Снизу и сверху прибивают гвоздями доски.
Скворечник можно сделать из подручных материалов. Главное, чтобы по своим характеристикам он соответствовал изложенным выше требованиямК сведению! В подобных жилищах комфортные условия созданы не только для птиц, но и для различных паразитов. Для их удаления необходимо обработать внутренние поверхности слабым раствором перманганата калия («марганцовкой»), либо кипятком. Чтобы эту процедуру выполнить быстро, крышку создают в легко съемном варианте.
Скворечник из дерева: в гармонии с природой
Этот материал применяют чаще всего, так как его параметры хорошо подходят для птичьего жилья. Однако следует помнить о следующих ограничениях.
Древесно-стружечные и другие виды искусственных изделий с ламинацией и без нее не применяютТакие материалы могут содержать соединения формальдегидов и другие небезопасные химические соединения.
При нагреве они выделяют неприятные запахи, отпугивающие птиц.
Хвойные породы выделяют смолы, которые помимо резких запахов создают неприятные липкие поверхности. Лучше всего подходит дерево лиственных пород, без предварительной пропитки.
Качественный скворечник получится из березовой доскиСхема сборкиНа этом фото – не только чертеж с размерами. Здесь приведена простая инструкция, которая поможет своими руками создать функциональную конструкцию. На пиктограммах приведены инструменты, которые понадобятся для выполнения рабочих операций.
К сведению! Как сделать скворечник без ошибок, можно узнать после внимательного изучения альтернативных материалов, разных чертежей, профессиональных советов. Полученную информацию следует оценить в комплексе, дополнить особенностями будущей эксплуатации и условиями на определенном земельном участке.
Скворечник из картона: вариант временного жилья
Этот легкий и удобный для обработки материал можно использовать, чтобы создать домик для птиц своими руками.
Следующая инструкция поможет разобраться, как сделать конструкцию быстро и без лишних затрат:
Они развивают мелкую моторику пальцев, ловкость, аккуратность. С их помощью ребенок сможет реализовать собственные уникальные идеи.
Применение плотного строительного картона продлит долговечность изделияК сведению! Удачный шаблон с размерами надо сохранить. Далее его используют для создания серии идентичных изделий. Надо не забывать, что картонный домик способен сохранять целостность на протяжении одного сезона, не более.
Но в данном варианте изоляционные характеристики стенок будут хуже, чем при выборе гофрированного материала. Для надежных соединений придется использовать высококачественные клеевые составы, либо специальные крепежные детали.
Для укрепления – стенки пропитывают специальными составами, устанавливают ребра жесткостиДекоративными скворечниками из картона украшают комнатыСкворечник из бумаги для летнего сезона
Чтобы понять, как сделать своими руками изделия из этого материала, можно использовать схемы, рассмотренные в предыдущем разделе статьи.
Но бумага даже после пропитки не способна обеспечить необходимую прочность для размещения конструкции на воздухе. Порывы ветра будут деформировать стенки домика, поэтому в нем птицам будет неуютно.
Скворечник из бутылки: просто и быстро
Этот материал достаточно прочен для успешной реализации настоящего проекта. Пластик сохраняет целостность в течение многих лет. Он не повреждается влагой, достаточно сильными механическими воздействиями. Но бутылки создают прозрачными для визуального контроля налитой жидкости. В таком жилье птиц будет беспокоить свет. Идеально гладкие стенки будет создавать затруднения в процессе перемещения взрослых скворцов и птенцов.
Для устранения недостатков используйте следующие инструкции о том, как сделать качественный домик для пернатых защитников собственного сада собственными руками:
- Подойдет пластиковая крупная тара (от 3 литров и более).

- Внутреннюю поверхность отделывают грубой тканью. Она создает комфортные для перемещения условия, улучшает изоляционные свойства.
- Для устранения прозрачности применяют окраску внешней поверхности. Можно создать несколько слоев. Но главное, чтобы последнее покрытие было устойчивым к погодным воздействиям. Подойдут составы на акриловой основе.
- Леток в пластике вырезать не сложно обычным канцелярским ножом. Под ним делают небольшой надрез. В него вставляют деревянную (пластиковую) жердочку.
Скворечник из фанеры: универсальный материал
Чертежи с размерами типичного деревянного домика для птиц подойдут для создания качественного аналога из фанерыУсовершенствованный вариантВ этой конструкции к нижней стороне крышки присоединены четыре «кубика».
Такое решение обеспечивает надежную фиксацию, не затрудняет демонтаж. В заднюю стенку ввинчены два крюка для закрепления на соответствующем стыковочном узле.
Как сделать своими руками скворечник, разобраться не сложно. Подойдет технология сборки такого же сооружения из дерева. Но необходимо отметить следующие особенности фанеры:
- Чтобы получить приемлемые показатели теплопроводности, необходимо использовать достаточно толстые листы (от 20 мм и более). Допустимо создание наборных стенок.
- Для эксплуатации на открытом воздухе подходят влагостойкие сорта. Эти материалы дороже, чем стандартные. Но изделия из них сохранят форму в течение длительного срока службы.
- Следует убедиться, что в фанере отсутствуют вредные для птиц, создающие неприятные запахи клеевые и другие химические соединения.
Скворечник из коробки: готовое решение
Чтобы не выяснять, как сделать конструкцию своими руками, можно купить специализированный наборВ этом комплекте есть деревянные заготовки, изготовленные с применением фабричных методик.
Они отличаются высоким качеством обработки, точными размерами. Краски и специальная декоративная накладка пригодятся для создания эстетичного внешнего вида. Инструкция по сборке поможет выполнить необходимые действия правильно.
«Демократичная» по цене модификацияВажно! В подобные комплекты, как правило, не включают инструменты. Их придется приобрести отдельно.
Этот картонный скворечник собирают буквально за несколько минут. Специальные вырезы предназначены для создания соединений. К преимуществам следует отнести небольшую стоимость, быстроту монтажных операций, возможность разборки. Для определения недостатков такой модели достаточно внимательно изучить снимок:
- Отсутствие дополнительного слоя, защищающего от влаги.
- Слишком большой леток для птиц.
- Низкая прочность соединительных узлов.
- Чрезмерно скромный внешний вид.
Размеры скворечника: что нужно учесть
Выше подробно рассмотрены вопросы о том, как правильно сделать конструкцию с применением разных материалов.
После комплексного анализа не сложно сделать вывод о преимуществах натурального дерева:
- это экологически чистый, недорогой материал;
- он обладает высокой прочностью и хорошими изоляционными характеристиками;
- его не слишком сложно обрабатывать в домашних условиях своими руками с применением простейших инструментов.
Последний пункт в этом списке заслуживает отдельного внимания. Расчетливые владельцы загородных участков делают жилье привлекательным для птиц определенных видов. Именно поэтому необходимо учитывать не только физиологические отличия скворцов и синиц, их особые привычки, предпочтения.
Сразу следует отметить, что построить по ГОСТу такой миниатюрный объект не получится. Для скворечника не разработаны стандартные справочные параметры.
На фото с разными вариантами видно, что имеет значение не только диаметр отверстия в скворечнике, но и расположение леткаЧтобы узнать, как построить домик без ошибок, нужны не только чертеж и размеры.
Следует уточнить, для каких обитателей он предназначенВажно! Какие должны быть габариты изделий, рассмотрено ниже. Там же приведены и требования к другим параметрам с учетом особенностей поведения разных птиц. В любой чертеж можно вносить индивидуальные изменения. Но лучше, если они будут относиться только к эстетическим параметрам изделий.
Размеры скворечника для скворцов
Типовые параметры конструкции приведены в следующей таблице:
| Ширина х Глубина дна (крыши). Минимальное – максимальное значение в мм. | Высота, мм | Диаметр отверстия в скворечнике для скворца, мм | Дополнения |
| 90 – 110 х 90 – 110 | 300 – 400 | 45 – 55 | Отверстие летка делают круглым, внутренние кромки тщательно обрабатывают, удаляют заусенцы. |
Когда пернатые соседи освоили новое жилище, такое сооружение убирают.
После этого птицы начнут уничтожать вредных насекомых.
Синичник: чертеж и размеры
Размеры скворечника для синиц немного отличаются от предыдущего варианта:
| Ширина х Глубина, мм | Высота, мм | Диаметр летка, мм | Форма летка |
| 100 – 120 х 100 – 120 | 240 – 310 | 30 – 40 | Круглая |
Домик для трясогузки: чертеж и размеры
Чтобы птицам было комфортно, надо учитывать следующие параметры:
| Ширина х Глубина, мм | Высота, мм | Ширина летка, мм | Форма летка |
| 300 – 350х 400 – 450 | 110 – 140 | 35 – 40 | Прямоугольная |
Чертежи можно создать самостоятельно на основе предоставленных в таблице данных.
Но надо помнить, что лапки трясогузки лучше приспособлены к бегу, чем к цеплянию за вертикальные поверхности. Этой птичке сложно проникнуть в леток стандартного скворечника. Для нее конструкцию дополняют «порогом», специальной площадкой шириной от 80 до 120 мм.
Как сделать скворечник пошагово
После ознакомления с теорией можно переходить к практике.В этой таблице приведен алгоритм, который поможет правильно создавать скворечники для птиц своими руками. Чертежи, расходные материалы, инструменты надо подготовить заранее.
| Фото | Схема действий и важные примечания |
| Для изготовления сравнительно несложного домика для птиц в домашних условиях своими руками подойдет такой чертеж скворечника с размерами. | |
В соответствии с данными конструкторской документации, размеры переносят на доски.![]() | |
| Вырезают деревянные заготовки с применением ручной пилы, либо инструмента с электрическим приводом. | |
| Чтобы птицам было удобнее перемещаться, внутренние поверхности делают шероховатые. При необходимости – наносят специальные насечки в зоне летка. | |
| Отверстие делают с помощью электродрели. Применяют насадку фрезу нужного размера. | |
| Чтобы упростить процесс сборки, по отмеченным точкам высверливают тонкие отверстия, либо делают небольшие углубления. В них вкручивают шурупы. С помощью таких крепежных изделий получаются надежные соединения. | |
Сборка выполняется последовательно. Заготовки устанавливают так, чтобы в процессе их скрепления не создавать дополнительные нагрузки на конструкцию. Для изделия из примера вполне достаточно трех шурупов на одной линии соединения. На фото это не указано, но некоторые мастера устанавливают во внутренних углах специальные вставки. С их помощью округляют форму внутреннего пространства, делают ее подобной обычному дуплу.![]() | |
| В центральной части крышки закрепляют деревянный прямоугольник с размерами, немного меньше свободной части внутреннего контура стенок. Фиксируют его пятью шурупами. | |
| Проверяют удобство установки и демонтажа крышки. При необходимости стамеской придают оптимальную форму деталям. | |
| Если создать несколько скворечников, сад будет лучше защищен от вредных насекомых. Чтобы продлить срок эксплуатации, изделие пропитывают снаружи специализированными составами. |
С помощью этого видео можно выяснить, как изготовить функциональный и красивый скворечник самостоятельно:
Важно! При создании любого типа домика необходимо заделать щели. Для этого можно использовать пеньку. Рабочие операции выполняют с применением специализированных инструментов, лопаток.
Как построить скворечник своими руками: пошаговая инструкция
Если купить готовый набор, скворечник своими руками для птиц можно сделать быстро и точно.
В таких комплектах есть точно подогнанные заготовки, расходные материалы. Подробные инструкции производителей поясняют, как правильно сделать скворечник. Но гораздо интереснее – оригинальные конструкции.
Если раздумываете о том, как самому сделать скворечник из бревна, просмотрите это видео:
Ниже приведены рекомендации, которые помогут изготовить «дуплянку» без ошибок.
| Фото | Схема действий и примечания |
Для реализации этого проекта подробные чертежи не понадобятся. Надо только соблюдать изложенные выше требования к размерам домиков для разных видов птиц. Сначала надо найти необходимое сырье. Хорошо подходит осина. В этой древесине сердцевина часто становится трухлявой с одновременным сохранением целостности наружных слоев. | |
| После доставки бревна домой, его распиливают по нужным размерам. Удаляют сгнившую кору. Один из срезов выполняют под небольшим углом. К этому торцу впоследствии будет прикреплена крыша. Наклон обеспечит автоматическое удаление осадков. В заготовке надо сделать отверстие (по всей длине). Для ускорения процесса применяют электроинструмент с длинным сверлом, стамески. | |
| При наличии сквозного отверстия даже крепкую древесину будет удалить не слишком сложно. | |
| Далее выборку лишнего материала осуществляют до состояния, пока не образованы равномерные стенки с толщиной от 20 до 30 мм. Изнутри убирают щепки, острые заусенцы. Отверстие под леток сверлят с применением электродрели, оснащенной зубчатой коронкой соответствующего диаметра. | |
Для дна подойдет доска (20-25 мм). Ее обрезают так, чтобы лишние части не выступали за уровень контура нижней части. | |
| Крышу в стационарном исполнении, как и дно, закрепляют шурупами. Чтобы не расколоть древесину, предварительно создают отверстия сверлом небольшого диаметра. Как делать съемный вариант кровли, рассказано выше. |
Как украсить скворечник своими руками
Нередко встречаются вопросы, можно ли красить такие сооружения? Нанесение пропиток, декоративных покрытий защищает древесину от влаги, вредных жучков-короедов. Такая обработка позволяет применять одну и ту же конструкцию на протяжении многих лет без ремонта. Но обязательно надо убедиться, что краски не содержат отпугивающие птиц запахи. С другой стороны, они не должны быть чрезмерно яркими, чтобы не привлекать хищников.
При правильном применении оригинальных идей получится сделать из функционального объекта выразительный элемент дизайна. Как разукрасить птичий домик, проще выяснить с применением фото конкретных примеров.![]()
Статья по теме:
Поделки для сада: все новинки своими руками. На земельном участке можно дать волю собственной фантазии, и сделать самостоятельно поделки. Лучшие примеры и практические советы по их воплощению – в этом материале.
Как правильно установить скворечник: выбираем место и способ
Эту задачу следует изучить отдельно. От правильного решения зависит не только привлекательность домика для его потенциальных обитателей. Если установить точно, куда должен смотреть скворечник, будут обеспечены комфортные условия для выращивания птенцов. Определенные мероприятия помогут повысить защищенность от неблагоприятной погоды и хищных животных.
Сначала надо выяснить, как правильно установить скворечник относительно сторон света. Некоторые специалисты рекомендуют повернуть леток на юг. Но такое решение не всегда будет правильным. Если домик будет находиться на солнечной стороне, не исключен его чрезмерный перегрев.
Необходимо в таком случае установить его в глубине тенистых веток.
Следует исключить заливание входного отверстия дождем. Для этого надо изучить «розу ветров». Леток устанавливают противоположно предпочтительному направлению воздушных потоков в определенной местности. Если необходимо, используют стену здания, крону дерева, иные искусственные и естественные укрытия.
В какую сторону повернуть леток, выяснить не трудно. Сложнее установить точное место монтажа. Высоту выбирают от 2,5 м до 3, 5 м, если рядом нет дополнительных факторов, вызывающих беспокойство птиц. При установке скворечника неподалеку от проездов, проходов, зданий и площадок для отдыха ее увеличивают до 4,5-5,5 м. Соблюдают расстояние между отдельными домиками для птиц не менее 15 м.
Чтобы определить, как закрепить скворечник на дереве, надо уточнить особенности конструкции.
Типовой вариантШест крепления домика фиксируют на опоре с применением гибких шнуров.
Предпочтительны синтетические веревки, иные изделия из прочных надежных материалов, не подверженных разрушительному влиянию коррозии.
Должные меры принимают, чтобы избежать разорения птичьих гнезд дятлами и котами.
На фото изображены типичные действия хищникаЧтобы животное не смогло дотянуться лапой до птенцов, увеличивают свес крыши. В типовых чертежах часто приводят соответствующий параметр от 4 см до 5 см. Увеличьте его до 7-8 см. Расход материалов увеличится незначительно, зато будет обеспечена эффективная пассивная защита. Аналогичный результат можно получить, если сделать крышу непригодной для комфортного размещения. Для этого увеличивают угол скоса, вбивают гвозди острыми концами вверх.
Для затруднения перемещения к жилищу скворца дерево (или иную опору) обивают полосами жести снизу и сверху. Применяют полосы металла 60-80 см шириной. Расстояние от такой защиты снизу до домика устанавливают 35-40 см, сверху – от 130 до 140 см.
Вместо металлических лент к опоре можно прикрепить ветки.
Их закрепляют веревкой. Применяют достаточно большое количество таких элементов для создания непроходимого препятствия.
Жердочку перед летком убирают, чтобы кот не смог опереться на нее. Маленькая ловкая птичка сможет проникнуть в домик без этого приспособления. Внутри, за отверстием, из деревянного уголка создают выступ. Чтобы дятел не выдолбил отверстие, вокруг летка устанавливают металлическую защиту.
Как крепить скворечники к дереву – ясно. Осталось уточнить особенности ухода. Птицам не нравятся старые гнезда, в которых заводятся вредные паразиты. По завершении сезона рекомендуется сделать очистку, дезинфекцию. Для регулярного выполнения этих процедур пригодится съемная крыша.
К сведению! Если при соблюдении всех правил скворечник пустует, его надо перевесить. Возможно, что это простое действие сделает его привлекательным для птиц.
ПОНРАВИЛАСЬ СТАТЬЯ? Поддержите нас и поделитесь с друзьями
Cкворечник своими руками: чертежи, размеры
Привлекать птиц на участок и полезно и приятно.
Полезно, потому что они уничтожают насекомых-вредителей, приятно — слушать их пение и наблюдать за поведением птиц. Потому многим приходит в голову идея — построить скворечник своими руками. Люди старше 40 лет, при этом могут вспомнить школьные годы: на уроках труда мальчики делали домики для птиц. Но не только владельцы участков делают скворечники. Часто жители многоквартирных домов вешают их на деревьях возле дома, на балконах и лоджиях.
Содержание статьи
Из чего делать
Ответ однозначный — из древесины, причем лиственных пород: хвойные слишком смолянисты. Смола может выпачкать оперение, что приведет к гибели птицы. Не стоит использовать и фанеру, ДСП или ОСБ. В таких скворечниках редко кто-то селится: клей и связующие отпугивают птиц. По той же причине собираем и скрепляем заготовки только на гвозди или шурупы, клей не используем.
Чаще всего скворечники делают из досок. Толщина досок — не менее 20 мм. Этой толщины достаточно для сохранения стабильной температуры внутри, что важно при выведении птенцов.
Чтобы при сборке доски не потрескались, под шурупы предварительно сверлим отверстия. Диаметр — чуть меньше диаметра шурупа.
Размеры скворечников для разных видов птиц
Для привлечения разных видов птиц размеры домика должны меняться. Изменяются в основном пропорции самого «тела» и леток. Задача — создать более привычные для данного вида условия гнездования.
| Вид птиц | Размеры дна | Высота скворечника | Размеры летка | Примечание |
|---|---|---|---|---|
| Скворцы | 10*10 см | 30-40 см | около 5 см | леток предпочтительнее круглой формы |
| Синичник — синицы, мухоловки, горихвостки, воробьи, воробьиные сычи | 10-12 см | 25-30 см | 30-35 мм | леток круглый |
| Малый синичник или мухоловочник (мухоловки, горихвостки) | 10*8 см | 25-30 см | 30 мм | |
| Полудуплянка | 10*8 см | 20 см | высота 33-50 мм во всю ширину стенки | леток — продольная щель в всю ширину передней стенки |
Как видите по таблице, в основном меняется только высота.
Если вы хотите привлечь трясогузок, сделайте скворечник уложенный набок: высота его будет 10-12 см, а ширина — 35-40 см, с таким же небольшим летком, расположенным примерно посередине. У трясогузок слабые лапки, и карабкаться по высокой стенке к летку они не могут. Потому и такой выбор гнездовий. В «трясогухочнице» также желательно перед входом сделать трапик около 10 см шириной — чтобы они могли заходить «пешком».
Некоторых пояснений требует полудуплянка. Некоторые птицы привыкли гнездиться не в дуплах, а в углублениях между ветками. В совсем закрытом искусственном гнездовье они селятся редко. Если вы хотите привлечь, например, серую мухоловку, сделайте ей небольшой ящик, в котором леток идет во всю ширину передней стенки.
Только учтите, что в таких домиках любят селиться еще и некоторые виды белок.
Есть еще одно гнездовье, которое часто птицам больше нравится — дуплянка. Это скворечник, вдолбленный из куска бревна. Часто распиливают на чурбаки подходящего размера засохшее дерево, превращая его в квартиры для птиц. Высоту и диаметр подбирают исходя из размеров, которые указывались для обычного скворечника. Дно и крыша в дуплянке делаются из куска доски.
Если в скворечнике леток небольшой, крышку делают съемной. Это необходимо для того, чтобы можно было обработать внутренности от паразитов. Иногда так бывает: живут птицы подряд несколько лет, а потом перестают селиться. Просто внутри размножились паразиты. Сняв крышку и выбросив оттуда старое гнездовье, скворечник ошпаривают кипятком. Этого бывает достаточно. Можно также обработать внутри слабым раствором марганцовки (чуть розоватым).
Безопасность
Обидно и жалко, когда гнезда птиц разоряют.
Занимаются этим в основном коты, да еще — дятлы. Потому, когда будете делать скворечник своими руками, увеличьте свес крыши. Почти во всех чертежах он нарисован длиной 5 см. Для того, чтобы защитить скворечник от кота, необходимо сделать так, чтобы он не смог дотянуться до летка. Для этого крыша должна выступать не меньше чем на 7 см, а лучше добавить еще пару — для крупных экземпляров. Этот выступ также будет защищать от косого дождя: вероятность того что птенцы промокнут становится еще меньше.
Еще вариант — набить гвоздей на крышку. Кот, вряд ли поранится, но и вольготно расположиться не получится — не дадут гвозди.
Сделайте выступ крыши больше, чтобы кот не мог лапой дотянуться до птенцовЧтобы защитить птенцов от дятлов есть несколько способов:
- оббить леток жестью:
- вбить вокруг летка несколько гвоздей;
- прибить на область летка накладку из древесины, волокна которой идут горизонтально.
Все это помешает дятлу расширить леток и добраться к яйцам или птенцам.
Последняя уловка — накладка — еще и усложнит коту задачу: дотянуться через продолжительный леток до птенца сложнее.
От котов и возможных оккупантов еще спасаются при помощи защитных поясов. Делают их или из жестяных полос или из «веников». Вы все поймете, посмотрев на картинку. Учтите, что расстояния нужно выдерживать в точностью до 3-4 см. Тогда животные не смогут перепрыгнуть защитные пояса. Не должны между ними и скворечником находится сучки, кормушки и другие возможные опоры.
Где повесить
Где повесить скворечник — тоже наука. Если водружать собрались на дереве, то на высоте не менее 2,5-3 метров. Вблизи от выбранного дерева не должны находится тропинки или оживленные мета — колодец, скамейка и т.д.
Выбрать место тоже надо правильноВыбирая место на дереве учтите, что перед летком не должно быть крупных веток: подлет должен быть свободным. При этом развернуть его нужно так, чтобы смотрело «окошко» на юг. Все это увеличивает шансы на то, что в вашем скворечнике поселятся жильцы.![]()
Еще момент: привязывать или прибивать нужно так, чтобы «домик» был наклонен немного вперед. Так и птенцам будет проще выбираться, и меньше дождь будет забивать.
Как сделать скворечник своими руками: фотоотчет
Делать будем самый легкий вариант — с плоской крышей. Как уже говорилось, берем неструганые доски лиственных пород толщиной от 20 мм. Чтобы избежать заноз, работать лучше в перчатках. Согласно чертежа нарезаем заготовки. Старайтесь чтобы спилы были ровными и под прямым углом: щелей быть не должно. Сразу после вылупления птенцы без оперения, и малейший сквозняк может их погубить. Потому все грани должны быть ровными.
Чертеж скворечника с размерамиБерем длинные тонкие гвозди — диаметр 1,5-2 мм, длина 4-5 см и молоток. Начинаем сборку. К лицевой части под прямым углом прибиваем боковины. На каждую — по три-четыре гвоздя.
Перевернув заготовку летком вниз, берем дно, вставляем его, выравниваем. Прибиваем к боковинам. Сверху накрываем задней стенкой, тоже прибиваем. Не забываем о соединении задней стенки с боковинами.
Вставляем дно и прибиваем заднюю стенкуПеревернув летком вверх, прибиваем дно еще и с этой стороны. Осталось собрать крышу. Берем оставшийся квадрат — двойник дна, прибиваем его так, чтобы торчащий впереди козырек был не менее 5 см (лучше 7-10 см, как говорили раньше). Если гвозди торчат, загибаем их.
Собираем и устанавливаем крышуКрыша просто должна плотно вставляться. Если что-то мешает, подрабатываем стамеской. Вот и все, скворечник своими руками готов.
Птицы приспособятся и без жердочкиЧасто под летком устанавливают жердочку. Нужна она или нет? Если вокруг достаточно веток — лучше не делать. Если веток нет- надо или сделать жердочку или небольшую полочку, хотя обойтись можно и без них. Почему? Потому что кошки тоже на них опираются и дотянуться до птенцов с опорой им проще.
Как сделать синичник смотрите в видео
Делаем дуплянку — скворечник из бревна
Если у пернатого народа будет выбор — поселиться в дуплянке или скворечнике из досок — выберут дуплянку. Она больше похожа на привычное «жилье» — дупло, в ней нет щелей с боков и, потому, — теплее. Они менее заметны на дереве,А значит больше шансов вырастить потомство. Это — плюсы с точки зрения птиц. Теперь о плюсах с точки зрения «производителей»: в работу идет упавшее дерево, а оно — бесплатно. Если нашли подходящее — его хватит на большое количество скворечников. О минусах — делать дуплянки дольше и сложнее: приходится вручную выковыривать сердцевину, оставляя нетронутыми стенки.
Из дуплянки в полетТеперь о том, как найти подходящую деревину. Лучше всего подходит осина: она выгнивает обычно изнутри, а по наружному краю остается твердой. Потому идем на поиски в осинник, и там среди поваленных деревьев ищем подходящее: распиливаем несколько стволов.
Важно найти с целым краем и гнилой серединой — быстрее пойдет работа.
Часто такие деревья имеют сгнившую кору, от чего вид у них неприглядный. Кору счищаем, бревно тянем на дачу или в дом. Там распиливаем на чурбаки подходящего размера. Размеры определяются диаметром. Для скворечника внутренний диаметр дуплянки должен быть 22-30 см, соответственно, наружный — 27-36 см. Для синичника подойдут отрезки ближе к вершине — внутренний диаметр 15-22 см, наружный — 19-26 см.
Высота чурбака тоже зависит от типа домика — синичник высотой 20-40 см (но охотнее селятся в низких), скворечник — от 30 до 45 см. Распиливая старайтесь сделать тот скос, что окажется снизу, ровным, а вверху — под небольшим наклоном — чтобы осадки с крыши стекали. Для изготовления крыш и донышек понадобятся обрезки досок, можно использовать необрезные и горбыль.
Берем отрезанный чурбачок и начинаем стамеской ковырять сердцевину. Задача — проковырять сквозную дырку.
После этого даже жесткую древесину легче скалывать. Чтобы процесс шел быстрее, можно дрелью насверлить отверстий, потом выломать перемычки стамеской.
Как правило, гнилая сердцевина заканчивается быстро, потом приходится обкалывать кусочки древесины при помощи стамески и молотка или киянки. Но с дырой в центре это намного проще — скалываются продольные куски, работа идет с нормальной скоростью.
Работаем стамеской и молоткомСтенки должны остаться порядка 1,5-3 см. Середину стараемся подработать более-менее гладко, без больших сколов. Когда стенки выбраны, делаем леток. Если есть сучек — можно выдолбить его. Или взять короку и дрель, высверлить в подходящем месте. Если коронки нет, берем обычное сверло, высверливаем по кругу отверстия, потом, при помощи той же стамески, прорубаем оставшиеся перемычки.
Скворечник своими руками из бревна почти готовНа дно идет кусок доски толщиной 2-2,5 см. Его прибивают гвоздями или прикручивают на саморезы.
Выступающие части срезают как можно ближе к стенкам.
Осталось прибить крышу. Подойдет такая же доска или горбыль. Перед тем, как вкручивать саморез, просверлите отверстия, иначе доска может расколоться.
Приделываем крышуСобственно, скворечник своими руками вы уже сделали, осталось обезопасить его от покушений дятлов. Если на стенках есть сучки, их желательно промазать пластилином (обычным, детским). Им же можно заделать щели, которые остались между дном и крышей и стенками: редко получается подогнать все четко. Если не хотите замазывать пластилином, можно проконопатить пеньковой веревкой. Ее прикладывают к щели, и загоняют в нее, плоской отверткой (вообще то для конопатки есть специальные лопатки, но они большие — это раз, и для «разового использования» их покупать …). Если «идет» плохо, можно постучать по рукоятке молотком.
Конопатка «швов» пеньковой веревкойКак украсить скворечник
Пока скворечник новый, он выглядит относительно неплохо, но уже через пару месяцев он потемнеет.
Для птиц это хорошо — он станет менее заметным и от этого они только выиграют. Но не всем домовладельцам нравится смотреть на такое неприглядное «украшение». Чтобы улучшить внешний вид, скворечник можно покрасить, вот только цвета выбирать надо «природные» — коричневый, серый, оттенки зеленого. Вы же хотите, чтобы ваши птицы выжили? Значит их гнездо необходимо маскировать, а не раскрашивать во все цвета радуги, привлекая всех возможных хищников.
Надеемся, теперь вы сможете не только сделать скворечник своими руками, но и грамотно (с точки зрения птиц) его украсить.
Чертежи с размерами
Некоторые чертежи скворечников есть по тексту, еще несколько выкладываем в этом разделе.
Подправить размеры под планируемых «жильцов» наверняка не проблема. Также обратите внимание, что раскладка дана для доски толщиной 2 см. При увеличении или уменьшении толщины необходимы коррективы.
варианты с чертежами и схемами + фото и видео
Птицы — незаменимые помощники в борьбе с вредными насекомыми. Но чтобы «договориться» с пернатыми об оказании посильной помощи, нужно их привлечь к своему участку. И для этого мы будем постигать азы строительства скворечника. Кстати, умение сооружать такие птичьи домики пригодится и для приобщения ребёнка к заботе об окружающем мире. Так что, если возраст и развитие моторики рук малыша позволяют — берите его в подмастерья. В статье вы найдёте разные идеи изготовления птичьих домиков из дерева.
Что вы можете сделать: скворечник, синичник и другие домики
О пользе птиц в хозяйстве известно многое, но некоторые цифры всё же впечатляют: в сезон небольшой по размеру скворец уничтожает до тысячи личинок майского жучка.
Это позволяет сохранить в целости и сохранности корнеплоды.
Скворечник может не только выполнять свою прямую функцию, но и быть украшением участка
Если ваша основная цель — привлечь птиц к участку, то, в зависимости от планируемого результата, пернатые должны быть конкретного вида. Но даже если скворечник строится просто как кормушка, вы должны учитывать, что не одни скворцы заселяют подвесные квартиры. Так что предварительно стоит ознакомиться с видами этих жилищ, а вместе с тем и некоторыми инженерными особенностями их строительства.
На зиму можно сконструировать и вот такой оригинальный многоквартирный скворечник, но не факт, что птицы действительно поселятся там
Размеры для чертежей деревянных домиков для разных птиц
От того, для каких птиц вы строите дом, будут зависеть его форма, размер и некоторые другие нюансы.
- Гнездовье. Дом с вертикальной стенкой сзади, длинным скатом крыши, который присоединяется к этой стенке под углом 30–40 градусов, и треугольными боковинами, а также сквозными летками.
Такие конструкции сооружаются не выше 1–1,5 м от земли и предназначены для пищух. - Трясогузочник. Этот домик должен быть расположен горизонтально на высоте 3–5 м от земли, так как птички не помещаются в классическом скворечнике, размеры дна которого колеблются в пределах 14–16 см, а стенок — от 20 до 30 см.
- Синичник. Это место для обитания мелких птичек. Высота 30 см, размеры 10 х 10 см, леток 3–4 см.
- Дуплянка. Эдакий вариант «туристического» домика для разных птичек в 2 м от земли, который можно сделать из полена с двумя заглушками сверху, снизу и входным отверстием посередине. Диаметр наружной колоды — от 15 см
- Полудуплянка. Строится для мухоловок. Внешне похож на уменьшенную копию скворечника — 12 х 12 см и 15 см высотой. Этот дом нужно оборудовать широким прямоугольным летком и нависающей над ним покатой крышей.
- Скворечник. Имеет квадратное днище 14 х 14 см и боковины в форме прямоугольной трапеции.
Причём задняя доска должна быть выше передней, чтобы крыша опиралась на них под углом. Может иметь и двускатную крышу.Верх домика для скворцов лучше делать съёмным, так как внутри необходимо производить уборку, иначе в следующем сезоне птенцы не выживут из-за обитающих в доме паразитов.
Фотогалерея: виды деревянных домов для разных птиц
Материалы и инструменты
Для изготовления классического скворечника необходимы:
- доски, желательно сосновые, либо полено подходящей ширины;
- саморезы, гвозди разных размеров;
- акриловые атмосферостойкие краски — если вы будете окрашивать изделие;
- шпатлёвка для обработки древесины — при необходимости заделывать щели.
Что касается инструментов, то нужны:
- ручная ножовка или лобзик;
- дрель с фрезом для выпиливания летка;
- шуруповёрт;
- отвёртка;
- молоток;
- карандаш, линейка, транспортир, циркуль.
Кроме инструментов, не менее важен для работы и удобный стол
Техника безопасности
Занимаясь конструированием скворечника, придётся иметь дело с колюще-режущими предметами.
Так что без соблюдения правил безопасности не обойтись.
Если вы доверяете ребёнку молоток или шуруповёрт, то должны быть уверены, что юный мастер знает, как им пользоваться
Перечислим основные:
- Принимаясь за решение квартирного вопроса для птиц, нужно быть сосредоточенным, внимательным и не отвлекаться на посторонние дела.
- Работать следует за удобным и крепким столом, чтобы можно было разместить на нём все инструменты и материалы.
- Если вы перед разметкой решили дерево обтесать, то делайте это в очках, чтобы опилки не попали в глаза, и в перчатках, чтобы не пришлось извлекать занозы.
- После сборки убедитесь, что в птичьем домике не осталось зазубрин, иначе пернатые гости могут получить травмы. С этой же целью нужно загнуть или сточить напильником выступающие концы гвоздей или шурупов.
Скворечники с пошаговым описанием изготовления
Рассмотрим варианты птичьих домиков от традиционных до оригинальных.
Первые попытки соорудить дома для птиц предприняли в прошлом тысячелетии индусы.
Постепенно это новшество перебралось в Европу, откуда и попало в Россию стараниями Петра I, ценившего всякие забавные вещицы.
Классический скворечник с двускатной крышей
Скворечник можно приквепить к стволу или подвесить на ветке
Материалы и инструменты:
- 2 прямоугольных детали для боковин шириной 15 см и высотой 22 см;
- 3 детали 19Х37 см для передней и задней стенок;
- 2 детали 15х15 см в качестве пола и одной части крыши;
- палочка для шестка;
- деталь для крыши 15х17 см;
- гвозди, молоток;
- клей для закрепления шестка;
- дрель с насадкой для выпиливания круглых отверстий 5 см в диаметре;
- линейка, карандаш.
Чтобы не возникло недочётов, точно выверяйте размер каждой детали на чертеже
Инструкция:
- На доске расчерчиваем все детали и вырезаем их.
- Не забудьте вырезать входное отверстие в середине передней стенки диаметром 5 см на расстоянии 19,5 см от низа.
- На фасадной и задней частях делаем 15 см скос под крышу с углом 90 градусов.

- Соединяем фасад и стенки.
Если нужно, загибаем выступающие части гвоздей так, чтобы они были плотно прижаты к стенкам и для герметизации обрабатываем стыки горячим воском или специальной шпатлёвкой для дерева.
Крепить доски можно не только гвоздями, но и саморезами
- Крепим к задней стенке и фасаду части крыши, хорошо стыкуя их друг с другом (стоит прошпаклевать шов). Только так, чтобы крышу можно было поднять и почистить скворечник. Для этого лучше использовать саморезы, которые можно выкрутить, а затем снова вкрутить.
Части крыши должны быть плотно соединены и не иметь щелей, чтобы не пропускать воду во время дождя
- Ещё раз проверяем, нет ли внутри скворечника торчащих гвоздей или саморезов. Крепим дно.
- Вклеиваем шесток.
Шесток крепим с помощью строительного клея
Внимание! Эту же модель можно сделать с легкосъёмным дном. Для этого крепим его не на шурупах, а на длинных деревянных «шпильках».
Кстати, остальные части можно крепить на столярный клей.
Некоторые мастера просто соединяют скаты крыши при помощи дверных петель, чтобы легко можно было насыпать корм и чистить домик
Скворечник из прямоугольных деталей
Упрощённая вариация классического скворечника, которую будет под силу самостоятельно смастерить школьнику, предполагает, что все детали домика выпиливаются в форме прямоугольников.
Детали «школьного» варианта скворечника все имеют прямоугольную форму
Инструкция:
- Выпиливаем детали. Обратите внимание, что все вертикальные части одинаковые, а дно по длине равно ширине одной вертикальной части + две толщины доски, а по длине равно ширине фасада. Крыша имеет форму квадрата со сторонами, равными длине дна.
- В фасадной детали выпиливаем леток диаметром 5 см и маленькое отверстие под шесток.
- Соединяем вертикальные детали гвоздями или саморезами.
Скрепляем все вертикальные детали
- Присоединяем дно и крышу.
Вклеиваем палочку-шесток.Крепим дно, крышу, затем вставляем шесток
- Прибиваем скворечник на длинную узкую доску, за которую будем крепить его к дереву.
Прикрепляем скворечник к доске для крепления на дереве
Видео: мальчик делает скворечник с плоской крышей своими руками
Оригинальный вариант без схемы — птичий дом из колоды
Такие домики обычно устраивают для небольших птичек
Материалы и инструменты:
- колода подходящего размера;
- бензопила;
- сверло для выборки древесины.
Инструкция:
- Устанавливаем колоду на столе вертикально.
- По желанию делаем 2 среза под одинаковыми углами — скаты крыши. Отпиливаем крышу.
- Отмеряем длину скворечника. Делаем на эту длину выборку внутренней части бревна.

Вырезая сердцевину, не стоит делать слишком тонкие стенки — такой скворечник будет непрактичным
- Отрезаем заготовку от бревна так, чтобы у скворечника было дно.
- В верхней части корпуса делаем леток.
- Просверливаем отверстие под шесток. Вставляем в него подходящую палочку.
- Крепим саморезами крышу к домику.
Видео: скворечник из бревна — народный способ
Лёгкий домик из дерева и тубуса
Не стоит выбрасывать старые школьные принадлежности: так из тубуса можно сделать … скворечник!
Материалы и инструменты:
- тубус;
- небольшая доска с шириной не меньше диаметра тубуса, длиной не менее двух диаметров;
- лобзик;
- карандаш, циркуль;
- дрель и саморезы либо молоток и гвозди, длинные и короткие.
Инструкция:
- Отрезаем примерно ¼ тубуса.

- Измеряем внутренний диаметр отверстия.
- Делаем 2 круга этого диаметра из доски.
- Первый круг закрепляем на дереве саморезами или гвоздями.
- Во втором выпиливаем круглое отверстие-леток.
- Просверливаем в нём чуть ниже отверстие для шестка, вставляем шесток.
- Располагаем фасад в тубусе. Маленькими гвоздями прибиваем его по окружности, чуть «утопив» в глубину, чтобы у домика был навес.
- Надеваем заготовку на закреплённый на дереве второй круг и так же прибиваем гвоздиками.
Если вы не хотите повредить дерево, то можно попробовать не вырезать заднюю стенку из доски, а просто оставить дно тубуса и затем, продев в его отверстие для ручки ременную ленту или проволоку, закрепить на стволе.
Фотогалерея: домики для птиц из других материалов
Хитрости для защиты скворечника от разорения
Самый главный враг птичьих домиков — кошка. Если опасность на вашем участке актуальна, то можно предпринять вот что:
- не делаем шесток для подлёта, иначе усатые-полосатые могут цепляться лапой за него и разорять гнёзда;
- сооружаем сильно выступающий за границы передней стенки козырёк, чтобы кошка не смогла засунуть лапу внутрь, сидя на крыше;
- не размещаем жилище на горизонтальных ветках.

В период межсезонья необходимо периодически осматривать скворечник: в такие домики могут заселяться белые летучие мыши.
Шесток не стоит делать, если на участке ходит кошка
Два способа закрепить готовый дом для птиц
Что касается размещения скворечника, то есть два варианта крепления его на дереве:
- прибить гвоздями;
- примотать проволокой.
Второй способ предпочтительнее, так как он защищает дерево от повреждений. Для дополнительной защиты коры дерева можно подложить какой-либо упругий материал между стволом или веткой и примоткой. Такая своеобразная прокладка примет на себя всю силу натяжения проволоки.
Если вы крепите скворечник проволокой, лучше вставить между проволокой и стволом небольшие подкладки, например, из автомобильной резины, чтобы не повредить дереву
Помните и о том, что новое место жительства для птиц нужно располагать под небольшим углом, чтобы домик был чуть-чуть наклонён вперёд: так птицам будет удобнее залетать.
Сделать скворечник своими руками не так уж и сложно. Времени уйдёт всего несколько часов, а польза для птиц и хозяйства будет огромная. В жаркий сезон такие сооружения станут хорошим «приглашением» для пернатых, которые помогают бороться с вредителями на участках и полях. К тому же конструирование скворечников — это прекрасный способ приобщиться самому и приобщить ребёнка к заботе об окружающем мире.
Высшее филологическое образование, 11 лет стажа преподавания английского и русского языков, любовь к детям и объективный взгляд на современность — ключевые линии моей 31-летней жизни. Сильные качества: ответственность, желание узнавать новое и самосовершенствоваться. Оцените статью: Поделитесь с друзьями!Как сделать скворечник из дерева своими руками: чертежи, размеры, виды
скворечник своими руками из дерева
Проектирование и изготовление скворечника занятие интересное и веселое, даже трудно сказать кому больше пользы, птицам или мастеру.
Традиционно домики для птиц делают из досок, причем необработанных досок, это самый подходящий материал для наших пернатых друзей. Поэтому в этой статье представлены фотографии и инструкции, из которых вы узнаете, как сделать скворечник своими руками из дерева.
Скворечник должен быть функциональным и желательно хорошо выглядеть. Всегда можно потратить немного времени, чтобы добавить домику для птиц каких-то интересных деталей, которые превращают обычную деревянную коробку в интересный и уникальный образец дворового искусства.
Как сделать скворечник из дерева
Проект для начинающего мастера. Хотите узнать, как сделать скворечник из дерева за один день из одной доски? Все очень просто.
- Закрепите боковые стороны задней панели
- Вырежьте доску в соответствии с чертежом. Затем сделайте жердочку длиной 5 см. Отшлифуйте все части наждачной бумагой. На лицевой стороне просверлите отверстие диаметром 4 см и еще одно для жердочки диаметром 15 мм.
Установите жердочку. - Приклейте две стенки на задней панели.
- Когда спина и боковые суставы высохнут, приклейте и зажмите нижнюю и переднюю стенки.
- Отрежьте 2 см от длины одной из верхних панелей – чтобы получился свес обеих сторон. Склейте панели крыши вместе. Используйте клейкую ленту вместо зажима.
- Нанесите клей на верхние края передней и задней части и установите собранную крышу.
- Используйте клейкую ленту, чтобы закрепить верхнюю часть, пока клей подсохнет.
- Когда клей высохнет, удалите ленту и покрасьте скворечник.
Источник фото www.lowes.com/creative-ideas/woodworking-and-crafts/one-board-birdhouse/project
Деревянный домик для птиц
Простая инструкция с чертежами и размерами, как сделать скворечник своими руками из дерева. Этот просто и аккуратный домик наверняка понравится птицам. Вы можете собрать этот надежный скворечник для птиц всего за несколько часов, если воспользуетесь представленными здесь схемами.
Имейте в виду, что также нужно будет поддерживать свой скворечник, очистив его после сезона гнездования. Чтобы сделать это как можно проще, в данном проекте предусмотрена откидная боковая стенка, которая удерживается на месте с помощью шарнира или двух гвоздей.
Вам понадобится одна доска длиной 120 см, гвозди и шурупы.
Шаг 1: распилите доску по размерам, показанным на схеме. Перекрестите шесть частей и отметьте их.Шаг 2: Просверлите отверстия, как показано на схеме.
Шаг 3: Соберите скворечник, сначала заднюю, правую и нижнюю части. Для передней части предварительно просверлите отверстия. Затем закрутите заднюю, правую стороны и переднюю часть снизу, как показано на схеме.
Шаг 4: Завершите сборку. Прикрепите крышу, как показано на фото. Затем прикрепите левую сторону вверху с помощью шарнира или двух гвоздей, чтобы стенка открывалась для очистки. В левом нижнем углу фронта просверлите отверстие через переднюю часть в сторону, чтобы можно было вставить фиксирующий штифт.
Вкрутите шуруп, который будет служить жердочкой для летка.
Отшлифуйте и если хотите, покрасьте.
Источник фото www.woodworkingcorner.com/birdhouse.php
Скворечник из дерева чертежи
Этот скворечник настолько простой, что с работой справится даже ребенок. Просто приготовьте для детей клей и готовые детали, пусть они соберут деревянный скворечник, а затем, когда конструкция будет готова и клей высохнет, просто зафиксируйте все детали гвоздями. Порядок сборки с размерами деталей, которые вам необходимо подготовить, показан на чертежах, там же показана и последовательность крепления всех частей.
Толщина доски в данном случае 1,5 см, на чертежах размеры указаны в дюймах, ничего сложного, просто умножьте эти цифры на 2,54 – получите размеры в сантиметрах. (1 дюйм 2,54 см).
Вам нужно выпилить такие детали:
- 2 шт — 7 ¼ дюйма передняя и задняя стенки — самая длинная точка, вырезайте верхние углы под углом 45°, чтобы сделать форму домика
- 2 шт — 4 ¼ дюйма боковые стенки
- 3 шт — 8 ½ дюйма напольные и кровельные части.

- Весь процесс сборки, это пять шагов
- Шаг 1: Прикрепите пол к задней стенке, задние кромки заподлицо.
- Шаг 2: Прикрепите боковые стенки к задней стенке и полу.
- Шаг 3: Прикрепите переднюю стену к бокам и полу.
Шаг 4: Одна из частей крыши должна быть на 1/2 дюйма меньше ширины, чем другая, с перекрытием. Прикрепите к передним и задним верхним краям.
Шаг 5 Затем прикрепите оставшуюся часть крыши.
Источник фото www.ana-white.com/2013/04/plans/kids-kit-project-2-birdhouse
Двойной скворечник с клумбой
Если у вас есть пару лишних досок, можете сделать вот такой двойной скворечник с клумбой.
Вам понадобятся:
- Доска 1×8 длиной 122 см
- Доска 1×6 длиной 244 см
- Гвозди, клей, дрель со сверлами
Сборка
- Выпилите четыре одинаковых лицевых части, а затем отрежьте спинки на 2 см по сторонам и внизу.
- Приклейте и забейте гвоздями все стенки, как показано на фото.

- Отрежьте нижнюю часть и закрепите, оставив зазор приблизительно 3 мм для дренажа. Впрочем, можно сделать и без зазоров, а просто просверлить отверстия
- Установите крышу
- Просверлите несколько отверстий в задних стенках для вентиляции
- Установите на столбе, заполните ящик между скворечниками грунтом, посадите цветочки.
Очень удобно, и птички и цветы, два в одном.
Источник фото www.instructables.com/id/cedar-double-bird-house-planter/
Если вам понравился двойной скворечник с клумбой, посмотрите еще такой вариант. Порядок сборки такой же, так что инструкцию переписывать не буду. Подробности есть на сайте автора проекта.
Источник фото www.instructables.com/id/Double-Bird-House-Planter/
А вот как сделать двойной скворечник с клумбой при помощи ЧПУ
Список материалов
- Станок CNC
- Лист фанеры
- Древесный клей
- Резиновый молоток
- Фрезерный станок
Дизайн или загрузка
Для рисования фигур автор использовал Inkscape, хорошо известный векторный графический редактор, успешно работающий в Windows, Linux, MacOS.
Удобный в том плане, что рисуете не с помощью пикселей, а фигур и формул, то есть проще масштабировать изображения.
Хотя было бы проще с параметрическим программным обеспечением САПР, таким как freecad или solidwork но, тем не менее, он выполнил свою работу.
- Шаг 1. Этот дизайн сделан на основе MDF толщиной 11 мм, поэтому вам нужно будет изменить дизайн для толщины вашего материала специально для Т-образных соединений
- Шаг 2: ЧПУ
- После редактирования дизайна в Inkscape или векторного программного обеспечения по вашему выбору, экспортируйте его в формате PDF, затем импортируйте PDF для CNC станка Vcarve Pro (если вы используете Shopbot CNC).Создать траектории для профилей с помощью меню операций с траекторией
- Шаг 3: Сборка
- После того, как все части вырезаны, следуйте инструкциям на прилагаемых изображенияхИспользуйте резиновый молоток, чтобы подогнать части вместе, или при необходимости древесный клей
- Шаг 4: Заключение
- Вероятно, вам придется исправить дизайн, чтобы он соответствовал материалу, который вы используете, но при минимальном редактировании вы можете иметь свой собственный домик для птиц в считанные минуты.
Источник фото www.instructables.com/id/Make-a-Birdhouse-Using-CNC/
Скворечник с кормушкой
Следуя этой инструкции, вы не просто сделаете безопасный домик для птиц, он еще и на две квартиры. К тому же вашим птичкам не придется далеко летать, чтобы найти себе еду – кормушка находится прямо на крыше скворечника.
Источник: https://novamett.ru/skvorechnik/iz-dereva
Скворечник для птиц своими руками: пошаговая инструкция с чертежами и размерами, оригинальные идеи, фото
Когда дом для хозяев участка построен, пора задуматься об остальных обитателях окрестностей. Наши помощники, птицы тоже нуждаются в жилье. Каким оно будет, зависит от вида птиц, которых нужно привлечь в сад.
«Строительные нормы» для скворечника
При выборе жилья пернатые руководствуются не красотой и изяществом строения, а его безопасностью и функциональностью. Птицы гарантированно поселятся в саду при выполнении ряда условий:
- скворечник изготовлен из древесины лиственных пород;
- толщина стенок домика — не менее 2 см;
- при сборке не применялся клей или материалы на его основе: фанера, ДВП, ОСБ.

Свежая древесина хвойных деревьев непригодна, поскольку выделяет смолу, склеивающую пёрышки. Кроме того, птицы не приемлют резких запахов, поэтому вместо клея для скрепления деталей применяются гвозди или шурупы.
Из старой сосновой доски без смоляных карманов можно смастерить скворечник
От параметров домика зависит, какой вид пернатых его выберет. Большинство птиц узнают своё будущее жилище по размеру входного отверстия. Диаметр летка:
- для скворцов — 4.5–5 см;
- для горихвосток — 3.5 см;
- для синиц — 2.8–3.5 см.
Если выпилить слишком широкий вход, гнездо окажется легкодоступным для хищников. А также велик шанс, что там обоснуются белки или крупные птицы.
Белки — забавные соседи, если хозяева участка не против угощать их своими ягодами и орехами
Старайтесь не превышать стандартные размеры скворечника:
- высота — 30–35 см;
- дно внутри — 12–17 см.

Иначе, птицы выведут слишком много птенцов, часть которых погибнет из-за недокорма. Пусть лучше родители вырастят 2–3 здоровых детёныша.
В скворечниках селятся не только скворцы, но и воробьи, мухоловки, стрижи, все виды синиц и горихвосток.
У каждой птицы есть любимая конструкция домика
Необязательно делать жёрдочку на скворечнике. Сороки могут сесть на неё и разорить гнездо. Пороги на домике тоже не прельщают птиц. Из-за строения лапок им неудобно стоять на плоскости.
Порожки на скворечниках не нужны птицам
Галерея: чертежи и схемы скворечников
Неугомонные воробьи — самые распространённые обитатели садов Скворечник с плоской крышей изготавливается за несколько часов Скворечник с приподнятой крышей — не самый безопасный вариант для птиц Для синиц подойдёт домик с дном 12х12 см Скворечник с диаметром летка от 3 до 4 см подойдёт самым мелким птицам После выпиливания деталей скворечника отшлифуйте места среза Самый простой скворечник для горихвостки — с квадратным летком Трясогузки и мухоловки часто гнездятся в домиках с летком во всю ширину стенки
Украшение скворечника
Чем меньше внимания привлекает жилище, тем лучше для птиц.
Желательно не красить его и не добавлять ярких деталей. Домик из ничем не обработанной древесины — лучший вариант. В крайнем случае используется краска без запаха под цвет коры деревьев — серая, коричневая или тёмно-бордовая.
Слишком ярко окрашенные скворечники из тонкой фанеры используются только в декоративных целях — для украшения сада, птицы вряд ли поселятся в них
Другое дело — декор природными материалами. Кусочки коры, веточки, мох украсят и закамуфлируют гнездовье.
Кора и ветки скрывают жилище от зоркого глаза хищников
Галерея: декор скворечников
Скворечник, украшенный галькой, может отпугнуть птиц из-за бликов Маленькие спилы дерева украшают домик и не раздражают птиц Скворечник в виде домика Бабы Яги украсит любое дерево Винные пробки дополнительно утеплят стены домика Подарочный скворечник покрывают резьбой В скворечнике из веток вряд ли поселятся птицы из-за многочисленных щелей Наклеив планки на покрашенный белой краской скворечник, получим фахверковый домик Обклеивая скворечник спилами, щели заделывают мхом Можно стилизовать скворечник под деревенский дом Делая скворечник с детьми, нарисуйте на стенках персонажей мультфильмов Скворечник часто стилизуют под сказочный домик Интересное решение — вместо жёрдочки использовать водопроводный кран Иногда птичьи домики выполняют в виде головы животных Декор в виде ствола дерева на фасаде очень украшает скворечник Садовые дизайнеры придумали как совместить кашпо и скворченик Если не умеете рисовать, расчертите скворечник линиями под линейку и раскрасьте
Скворечник из деревянных досок с плоской крышей
Скоро опять весна и мы с мужем решили смастерить правильный скворечник для крылатых друзей.
Наш прошлый домик облюбовали белки и приспособили под ореховый склад, он оказался слишком большим для птиц.
Сейчас выбор пал на самую простую конструкцию скворечника с односкатной крышей.
Инструменты:
- молоток;
- отвёртка;
- дрель и свёрла;
- лобзик или пила.
Источник: https://dacha.help/sadovyiy-dekor/skvorechnik-svoimi-rukami
Как сделать скворечник своими руками — размеры, формы, чертежи и фото идеи
Для того, чтобы перестать беспокоится за сохранность своего урожая, подарите птицам комфортное жилище на приусадебном участке. Именно они помогут в борьбе с вредителями зеленых насаждений.
В скворечнике могут поселиться скворцы, синицы, воробьи, дрозды, сизоворонки, трясогузки и многие другие. Они будут не только защищать ваш урожай, но и своими повседневными заботами, красивым пением поднимать настроение.
Для того, чтобы домик получился уютным нужно выполнить некоторые рекомендации.
- Скворечник должен иметь не прозрачную и прочную конструкцию.
- Для удобного передвижения птиц и птенцов, необходимо оставить стенки домика внутри шероховатыми.
- Материал для изготовления должен удерживать тепло, не пропускать звук.
Жилище можно изготовить как из простых картонок, пластмассовых бутылок, так и из досок или из бревен, фанеры.
Чаще всего применяются доски из лиственных пород. Самый лучший вариант: ольха, береза или осина. Природный материал не отпугивает птиц и служит несколько лет.
Перед тем как начать делать дом, нужно, прежде всего, подумать о функциональности конструкции, а уже потом о декоре. Птицам все равно, как вы украсите их жилище, им важен размер отверстия летка и внутренний объем скворечника.
Месторасположение и размеры сооружения необходимо выбирать в соответствии с разными особенностями птиц.
Рассмотрим стандартные размеры скворечников и примеры чертежей для разных видов птиц.
Параметры жилища для скворцов
Ширина х Глубина дна (крыши) — 90 – 110 х 90 – 110
Минимальное – максимальное значение в мм.
- высота 300 – 400 мм.
- Диаметр отверстия в скворечнике для скворца 45 – 55 мм
- Отверстие летка делают круглой формы, внутренние кромки тщательно обрабатывают, удаляют заусенцы.
Параметры домика для синиц
Ширина х Глубина — 100 – 120 х 100 – 120
Минимальное – максимальное значение в мм.
- Высота 240 – 310 мм.
- Диаметр летка 30 – 40 мм.
- Форма летка круглая.
Размеры жилища для трясогузки
Ширина х Глубина — 300 – 350х 400 – 450
Минимальное – максимальное значение в мм.
- Высота 110 – 150 мм.
- Ширина летка 35 – 40 мм.
- Форма летка прямоугольная.
- Порог (специальная площадка) шириной от 80 до 120 мм
В целом конструкция скворечника может отличаться от стандартных моделей.
Так, можно изготовить домики для птиц на несколько комнат, чтобы в них заселялись сразу несколько птичьих семей.
Крыша может состоять из двух ярусов. Армировать нужно надежно и правильно. Нельзя запрокидывать его назад, лучше сделать небольшой наклон вперед, так птицам будет легче выбираться из дупла.
Способы изготовления
Рассмотрим несколько самых распространённых способов изготовления птичьего домика своими руками.
Изготовления скворечника из дерева
Сделать скворечник из дерева это, пожалуй, самый классический, традиционный способ. Алгоритм действий заключается в следующем:
- Выбрать материал, желательно доски из лиственных пород.
- Сделать чертеж, затем перенести схему на заготовки для домика.
- Подготовить необходимые инструменты и подручные материалы: саморезы, гвозди; водонепроницаемые краски; молоток, отвертка или шуруповёрт, ножовка, столярный клей, линейка, кисточки, карандаш.

- Вырезать заготовки по нанесенным чертежам. Желательно изнутри доски оставить шероховатой поверхность.
- В передней стене высверлить отверстие. Прикрепить планку, с помощью которой скворечник будет крепиться, к задней стене.
- Теперь необходимо собрать конструкцию. Скрепите фасад и боковые стенки столярным клеем, и пока он высыхает, зафиксируйте детали при помощи гвоздей или саморезов.
- Старайтесь делать так, чтобы не оставалось щелей. Далее таким же образом соедините дно с боковыми и передними стенками. Задняя стенка приклеивается и фиксируется в последнюю очередь. Закрепить жердочку.
- Изготовить выступающую крышу, чтобы защищала от дождя и ветра. Лучше сделать её съёмной, чтобы проще было убираться в скворечнике. Соединить саморезами меньшую деталь крыши с большей по размеру.
- Домик можно покрасить, а затем надежно закрепить на выбранном месте.
Изготовления скворечника из пластиковой бутылки
Также существует очень простой способ сделать скворечник из пластиковой бутылки.
Для этого понадобиться пластиковая бутылка, удобно использовать двухлитровую емкость; водостойкие акриловые краски, желательно коричневого, зеленого или бежевого цвета; кисточка; канцелярский нож; ножницы; клей для пластиковых вещей; дрель и сверла 1/4 и 1/16; плоскогубцы; проволока; скотч. Итак, алгоритм действий заключается в следующем:
- Вначале нужно проделать круглое отверстие в двухлитровой бутылке. Для этого понадобиться канцелярский нож. Дырочку надо делать на расстоянии 3 см от донышка.
- Далее устанавливаем насест. Для этого просверливаем дрелью дырочку, чуть ниже уже готового отверстия и вставляем туда длинный дюбель.
- Затем красим домик бутылку безвредными красками, которые устойчивы к влаге. Цвет желательно выбирать темных тонов (зеленый, синий, коричневый). Пернатые друзья предпочитают, чтобы в домике было темно. Чтобы придать яркости скворечнику, его можно украсить красивыми яркими лентами.
- Следующим этапом необходимо соорудить петлю, с помощью которой сможем прикрепить домик к дереву или столбу.
Для этого в крышке от бутылки сверлим две небольшие дырки, через которые продеваем проволочку и тщательно закручиваем концы. - На дно бутылки следует положить натуральный материал для подстилки. Это может быть песок или веточки, также подойдет сено или лоскуты ткани.
- Крышу изготавливаем в виде черепицы. Ее можно сделать как из пластмассовых заготовок, так и из ненужных дисков. Для этого необходимо вырезать нужную форму заготовки и поочередно приклеить, раскрасить красками.
- Бутылку следует повесить повыше на толстый ствол дерева, где птиц никто не побеспокоит.
Это очень интересный способ изобретения птичьего домика. Его можно сделать быстро в течение часа, дети очень любят принимать участие в изготовлении такого простого жилища для пернатых друзей.
- При этом скворечник, из пластмассовой бутылки, отлично защищает птиц от ветра, дождя, выдерживает внешние перепады температур.
Эксклюзивные модели скворечников
Конечно, птичий домик является отличным украшением для каждого сада, приусадебного участка.
Идеи скворечника своими руками могут быть самые разнообразные и смелые в своем исполнении.
При выборе эстетического дизайна не забывайте учитывать насущные потребности птиц. Так в качестве домика будет очень симпатично смотреться соломенная шляпа.
Благодаря тому, что она изготовлена из натуральной соломы, птицам там будет очень уютно и комфортно.
Можно выполнить оригинальный скворечник своими руками из камней. Такое жилище понравится многим пернатым, оно будет надежно защищать наших друзей от внешних воздействий окружающей среды.
Существует большое разнообразие резных деревянных скворечников. Это могут иметь сложные, высокие, замысловатые конструкции. Здесь фантазия творческих людей не имеет границ.
При выборе цветовой палитры, аксессуаров ограничений также нет. Крышу такого деревянного дома можно демонтировать металлическими листами. Это даст ему дополнительную защиту.
Если есть желание, то с помощью шлакоблоков можно выполнить бетонную композицию.
Необычно и эксклюзивно смотрится скворечник из старого алюминиевого чайника или самовара. Такой птичий домик может стать изюминкой в любом интерьере вашего сада, приусадебного участка.
Все сооруженные конструкции можно украсить необычными рисунками, росписями, ленточками.
Очень интересно декорирование в виде окон, дверей, дымоходов, заборчиков и других деталей, имитирующих настоящий дом.
Чтобы украсить скворечник, можно использовать любые подручные материалы и, конечно, фантазию. Не забывайте главное правило, что все элементы декора должны быть надежны и безопасны для птиц.
Чертежи и схемы для скворечников
Фото идеи оригинальных скворечников для птиц
Из какого материала лучше сделать скворечник?
Лучше использовать доски из лиственных пород.
Самый верный вариант: ольха, береза или осина.
Что нужно учитывать при изготовлении домика для разных видов птиц?
Месторасположение и размеры скворечника необходимо выбирать в соответствии с разными особенностями птиц.
Из какого материала изготавливают традиционный птичий домик?
Сделать скворечник из дерева это самый классический, традиционный способ.
Как можно украсить птичьи домики?
Все сооруженные конструкции можно украсить необычными рисунками, росписями, ленточками.
Очень интересно декорирование в виде окон, дверей, дымоходов, заборчиков и других деталей, имитирующих настоящий дом.
Источник: https://tvojdizajn.ru/skvorechnik-svoimi-rukami
Как сделать скворечник из дерева своими руками: варианты с чертежами и схемами + фото и видео
Птицы — незаменимые помощники в борьбе с вредными насекомыми. Но чтобы «договориться» с пернатыми об оказании посильной помощи, нужно их привлечь к своему участку.
И для этого мы будем постигать азы строительства скворечника.
Кстати, умение сооружать такие птичьи домики пригодится и для приобщения ребёнка к заботе об окружающем мире. Так что, если возраст и развитие моторики рук малыша позволяют — берите его в подмастерья.
В статье вы найдёте разные идеи изготовления птичьих домиков из дерева.
Что вы можете сделать: скворечник, синичник и другие домики
О пользе птиц в хозяйстве известно многое, но некоторые цифры всё же впечатляют: в сезон небольшой по размеру скворец уничтожает до тысячи личинок майского жучка. Это позволяет сохранить в целости и сохранности корнеплоды.
Скворечник может не только выполнять свою прямую функцию, но и быть украшением участка
Если ваша основная цель — привлечь птиц к участку, то, в зависимости от планируемого результата, пернатые должны быть конкретного вида.
Но даже если скворечник строится просто как кормушка, вы должны учитывать, что не одни скворцы заселяют подвесные квартиры.
Так что предварительно стоит ознакомиться с видами этих жилищ, а вместе с тем и некоторыми инженерными особенностями их строительства.
На зиму можно сконструировать и вот такой оригинальный многоквартирный скворечник, но не факт, что птицы действительно поселятся там
От того, для каких птиц вы строите дом, будут зависеть его форма, размер и некоторые другие нюансы.
- Гнездовье. Дом с вертикальной стенкой сзади, длинным скатом крыши, который присоединяется к этой стенке под углом 30–40 градусов, и треугольными боковинами, а также сквозными летками. Такие конструкции сооружаются не выше 1–1,5 м от земли и предназначены для пищух.
- Трясогузочник. Этот домик должен быть расположен горизонтально на высоте 3–5 м от земли, так как птички не помещаются в классическом скворечнике, размеры дна которого колеблются в пределах 14–16 см, а стенок — от 20 до 30 см.
- Синичник. Это место для обитания мелких птичек.
Высота 30 см, размеры 10 х 10 см, леток 3–4 см. - Дуплянка. Эдакий вариант «туристического» домика для разных птичек в 2 м от земли, который можно сделать из полена с двумя заглушками сверху, снизу и входным отверстием посередине. Диаметр наружной колоды — от 15 см
- Полудуплянка. Строится для мухоловок. Внешне похож на уменьшенную копию скворечника — 12 х 12 см и 15 см высотой. Этот дом нужно оборудовать широким прямоугольным летком и нависающей над ним покатой крышей.
- Скворечник. Имеет квадратное днище 14 х 14 см и боковины в форме прямоугольной трапеции. Причём задняя доска должна быть выше передней, чтобы крыша опиралась на них под углом. Может иметь и двускатную крышу.Верх домика для скворцов лучше делать съёмным, так как внутри необходимо производить уборку, иначе в следующем сезоне птенцы не выживут из-за обитающих в доме паразитов.
Скворечник двускатный Скворечник односкатный Синичник Домик для мелких птиц Гнездовье для сов Гнездовье для мелких птиц Дуплянка
Для изготовления классического скворечника необходимы:
- доски, желательно сосновые, либо полено подходящей ширины;
- саморезы, гвозди разных размеров;
- акриловые атмосферостойкие краски — если вы будете окрашивать изделие;
- шпатлёвка для обработки древесины — при необходимости заделывать щели.

Что касается инструментов, то нужны:
- ручная ножовка или лобзик;
- дрель с фрезом для выпиливания летка;
- шуруповёрт;
- отвёртка;
- молоток;
- карандаш, линейка, транспортир, циркуль.
Кроме инструментов, не менее важен для работы и удобный стол
Занимаясь конструированием скворечника, придётся иметь дело с колюще-режущими предметами. Так что без соблюдения правил безопасности не обойтись.
Если вы доверяете ребёнку молоток или шуруповёрт, то должны быть уверены, что юный мастер знает, как им пользоваться
Перечислим основные:
- Принимаясь за решение квартирного вопроса для птиц, нужно быть сосредоточенным, внимательным и не отвлекаться на посторонние дела.
- Работать следует за удобным и крепким столом, чтобы можно было разместить на нём все инструменты и материалы.

- Если вы перед разметкой решили дерево обтесать, то делайте это в очках, чтобы опилки не попали в глаза, и в перчатках, чтобы не пришлось извлекать занозы.
- После сборки убедитесь, что в птичьем домике не осталось зазубрин, иначе пернатые гости могут получить травмы. С этой же целью нужно загнуть или сточить напильником выступающие концы гвоздей или шурупов.
Скворечники с пошаговым описанием изготовления
Рассмотрим варианты птичьих домиков от традиционных до оригинальных.
Первые попытки соорудить дома для птиц предприняли в прошлом тысячелетии индусы. Постепенно это новшество перебралось в Европу, откуда и попало в Россию стараниями Петра I, ценившего всякие забавные вещицы.
Классический скворечник с двускатной крышей
Скворечник можно приквепить к стволу или подвесить на ветке
Материалы и инструменты:
- 2 прямоугольных детали для боковин шириной 15 см и высотой 22 см;
- 3 детали 19Х37 см для передней и задней стенок;
- 2 детали 15х15 см в качестве пола и одной части крыши;
- палочка для шестка;
- деталь для крыши 15х17 см;
- гвозди, молоток;
- клей для закрепления шестка;
- дрель с насадкой для выпиливания круглых отверстий 5 см в диаметре;
- линейка, карандаш.

Чтобы не возникло недочётов, точно выверяйте размер каждой детали на чертеже
Инструкция:
- На доске расчерчиваем все детали и вырезаем их.
- Не забудьте вырезать входное отверстие в середине передней стенки диаметром 5 см на расстоянии 19,5 см от низа.
- На фасадной и задней частях делаем 15 см скос под крышу с углом 90 градусов.
- Соединяем фасад и стенки.
Если нужно, загибаем выступающие части гвоздей так, чтобы они были плотно прижаты к стенкам и для герметизации обрабатываем стыки горячим воском или специальной шпатлёвкой для дерева.
Крепить доски можно не только гвоздями, но и саморезами
- Крепим к задней стенке и фасаду части крыши, хорошо стыкуя их друг с другом (стоит прошпаклевать шов). Только так, чтобы крышу можно было поднять и почистить скворечник. Для этого лучше использовать саморезы, которые можно выкрутить, а затем снова вкрутить.
Части крыши должны быть плотно соединены и не иметь щелей, чтобы не пропускать воду во время дождя
- Ещё раз проверяем, нет ли внутри скворечника торчащих гвоздей или саморезов.
Крепим дно. - Вклеиваем шесток.
Шесток крепим с помощью строительного клея
Внимание! Эту же модель можно сделать с легкосъёмным дном. Для этого крепим его не на шурупах, а на длинных деревянных «шпильках». Кстати, остальные части можно крепить на столярный клей.
Некоторые мастера просто соединяют скаты крыши при помощи дверных петель, чтобы легко можно было насыпать корм и чистить домик
Упрощённая вариация классического скворечника, которую будет под силу самостоятельно смастерить школьнику, предполагает, что все детали домика выпиливаются в форме прямоугольников.
Детали «школьного» варианта скворечника все имеют прямоугольную форму
Инструкция:
- Выпиливаем детали. Обратите внимание, что все вертикальные части одинаковые, а дно по длине равно ширине одной вертикальной части + две толщины доски, а по длине равно ширине фасада. Крыша имеет форму квадрата со сторонами, равными длине дна.
- В фасадной детали выпиливаем леток диаметром 5 см и маленькое отверстие под шесток.

- Соединяем вертикальные детали гвоздями или саморезами.
Скрепляем все вертикальные детали
- Присоединяем дно и крышу. Вклеиваем палочку-шесток.
Крепим дно, крышу, затем вставляем шесток
- Прибиваем скворечник на длинную узкую доску, за которую будем крепить его к дереву.
Прикрепляем скворечник к доске для крепления на дереве
Видео: мальчик делает скворечник с плоской крышей своими руками
Оригинальный вариант без схемы — птичий дом из колоды
Такие домики обычно устраивают для небольших птичек
Материалы и инструменты:
- колода подходящего размера;
- бензопила;
- сверло для выборки древесины.
Инструкция:
- Устанавливаем колоду на столе вертикально.
- По желанию делаем 2 среза под одинаковыми углами — скаты крыши. Отпиливаем крышу.
- Отмеряем длину скворечника. Делаем на эту длину выборку внутренней части бревна.
Вырезая сердцевину, не стоит делать слишком тонкие стенки — такой скворечник будет непрактичным
- Отрезаем заготовку от бревна так, чтобы у скворечника было дно.

- В верхней части корпуса делаем леток.
- Просверливаем отверстие под шесток. Вставляем в него подходящую палочку.
- Крепим саморезами крышу к домику.
Видео: скворечник из бревна — народный способ
Лёгкий домик из дерева и тубуса
Не стоит выбрасывать старые школьные принадлежности: так из тубуса можно сделать … скворечник!
Материалы и инструменты:
- тубус;
- небольшая доска с шириной не меньше диаметра тубуса, длиной не менее двух диаметров;
- лобзик;
- карандаш, циркуль;
- дрель и саморезы либо молоток и гвозди, длинные и короткие.
Инструкция:
- Отрезаем примерно ¼ тубуса.
- Измеряем внутренний диаметр отверстия.
- Делаем 2 круга этого диаметра из доски.
- Первый круг закрепляем на дереве саморезами или гвоздями.
- Во втором выпиливаем круглое отверстие-леток.
- Просверливаем в нём чуть ниже отверстие для шестка, вставляем шесток.
- Располагаем фасад в тубусе.
Маленькими гвоздями прибиваем его по окружности, чуть «утопив» в глубину, чтобы у домика был навес. - Надеваем заготовку на закреплённый на дереве второй круг и так же прибиваем гвоздиками.
Если вы не хотите повредить дерево, то можно попробовать не вырезать заднюю стенку из доски, а просто оставить дно тубуса и затем, продев в его отверстие для ручки ременную ленту или проволоку, закрепить на стволе.
Фотогалерея: домики для птиц из других материалов
Скворечники из пластиковых бутылок можно красить акриловыми красками, чтобы домик не был прозрачным, но и тогда нет гарентии, что пернатые поселятся там Скворечники можно делать из самых необычных вещей, например, из пропанового баллона Сапоги-скворечники можно украсить ярким рисунком Эта модель может быть только кормушкой, птицы не будут чувствовать себя уютно в прозрачном доме Недостатками картонных «квартир» является их крайняя непрактичность, а также малый вес, что создаёт проблемы в дождливую или ветреную погоду
Хитрости для защиты скворечника от разорения
Самый главный враг птичьих домиков — кошка.
Если опасность на вашем участке актуальна, то можно предпринять вот что:
- не делаем шесток для подлёта, иначе усатые-полосатые могут цепляться лапой за него и разорять гнёзда;
- сооружаем сильно выступающий за границы передней стенки козырёк, чтобы кошка не смогла засунуть лапу внутрь, сидя на крыше;
- не размещаем жилище на горизонтальных ветках.
В период межсезонья необходимо периодически осматривать скворечник: в такие домики могут заселяться белые летучие мыши.
Шесток не стоит делать, если на участке ходит кошка
Два способа закрепить готовый дом для птиц
Что касается размещения скворечника, то есть два варианта крепления его на дереве:
- прибить гвоздями;
- примотать проволокой.
Второй способ предпочтительнее, так как он защищает дерево от повреждений. Для дополнительной защиты коры дерева можно подложить какой-либо упругий материал между стволом или веткой и примоткой. Такая своеобразная прокладка примет на себя всю силу натяжения проволоки.
Если вы крепите скворечник проволокой, лучше вставить между проволокой и стволом небольшие подкладки, например, из автомобильной резины, чтобы не повредить дереву
Помните и о том, что новое место жительства для птиц нужно располагать под небольшим углом, чтобы домик был чуть-чуть наклонён вперёд: так птицам будет удобнее залетать.
Сделать скворечник своими руками не так уж и сложно. Времени уйдёт всего несколько часов, а польза для птиц и хозяйства будет огромная.
В жаркий сезон такие сооружения станут хорошим «приглашением» для пернатых, которые помогают бороться с вредителями на участках и полях.
К тому же конструирование скворечников — это прекрасный способ приобщиться самому и приобщить ребёнка к заботе об окружающем мире.
- Наталья Василишин
- Распечатать
Источник: https://maja-dacha.ru/muzhskaya-klassika-rubriki-svoimi-rukami-delaem-skvorechniki-iz-dereva/
Скворечник своими руками
На данный момент в больших городах мало дуплистых деревьев, и птичкам тяжело найти себе домик.
Давайте поможем им и сделаем скворечник своими руками. Таким образом, мы спасём птиц от холода. В этой статье мы рассмотрим: как сделать скворечник своими руками?
Техника безопасности
- Используйте полотняные перчатки, чтобы не загнать занозу.
- Наденьте защитные очки, чтобы опилки не попали в глаза.
- Рабочий инструмент (нож, пила) должен быть острым. Помните, что тупым инструментом легко поранится, он плохо фиксируется в дереве и норовит соскользнуть.
- Проверьте исправность электроинструментов.
- Воспользуйтесь лестницей при подвешивании готового скворечника.
- Если вы хотите покрасить скворечник, используйте краску без запаха на водной основе не ярких цветов. Старайтесь чтобы домик для птиц был незаметным для хищников.
Из чего сделать скворечник?
Лучшим материалом для изготовления скворечника является натуральное дерево лиственных пород, например: дуб, осина, липа, берёза.
Также для скворечника подойдут ДВП (древесноволокнистые плиты), ДСП (древесностружечные плиты), и фанера.
Можно использовать плотный картон, однако такой скворечник прослужит только пару месяцев.
Не стоит использовать хвойное дерево, так как оно выделяет липкую смолу и негативно влияет на здоровье птиц.
Мастер-класс изготовления скворечника
Вам понадобится: необработанные доски лиственных пород, гвозди длинной 4 см, пропитка либо нетоксичная краска на водной основе без запаха (по желанию), ножовка либо электролобзик, рулетка, молоток, карандаш, дрель с фрезой на 5 см, кисточка.
- Ознакомьтесь с размерами скворечника указанными на изображении и приступайте к работе.
- Сделайте разметку досок, используя рулетку.
- Нарежьте доски с помощью ножовки либо электролобзика.
- Проделайте отверстие-леток с помощью дрели с фрезой на 5 см.
- Набейте предварительно гвозди с наружных сторон стенок в местах соединения.
- Установите жёрдочку под отверстием, используя дрель.
- Последовательно соберите скворечник.
- Покрасьте скворечник и задекорируйте на свой вкус (по желанию).

- Повесьте скворечник на высоту от 3 метров с небольшим наклоном вперёд, чтобы внутрь не попадала влага.
Домик для птичек готов! Рекомендую к просмотру видео мастер-класс!
Чертежи скворечников
Представляем вашему вниманию варианты чертежей будущих скворечников. Во время сборки скворечника не пренебрегайте правилами техники безопасности описанной выше.
Чертёж№1 Скворечник со скатом к задней стенке
Чертёж№2 Скворечник с односкатной крышей
Чертёж№3 Скворечник с двухскатной крышей
Рекомендую к просмотру видео мастер-класс!
Последовательность сборки скворечника
- Соедините переднюю стенку с боковыми стенками, забейте гвозди по краям и центру доски. (Должна получится П-образная конструкция).
- Соберите заднюю стенку и низ конструкции таким же методом.
- Прибейте ко дну деревянный штапик, для закругления внутренних углов.
- Не забывайте фиксировать гвоздями все элементы будущего скворечника.

- Сделайте съёмную крышу скворечника, чтобы в дальнейшем чистить домик для птиц. Она должна состоять из двух деталей основной части и втулки.
- Крыша скворечника должна выступать за габариты самого скворечника со стороны фасада, чтобы внутрь скворечника не попадали осадки.
- Установите дощечку либо жёрдочку перед входом в домик.
Как закрепить скворечник?
- Выберите место для установки скворечника, это может быть дерево, столб, либо крыша дома.
- Высота крепления скворечника должна быть не меньше 3х метров.
- Во время закрепления скворечника наклоните его вперёд, чтобы внутрь не попадала влага.
- К живому дереву лучше прикрепить скворечник с помощью проволоки либо верёвки.
- К другим поверхностям можно прикрепить скворечник, используя гвозди и молоток.
- Скворечник должен находиться в теньке, чтобы на него не попадали прямые солнечные лучи, и домик для птиц не нагревался.
- Отверстие-леток должен быть направлен в противоположную сторону от ветра.

- Не устанавливайте скворечники рядом – скворцы не любят соседей.
Рекомендую к просмотру данное видео!
Идеи для скворечников из подручных материалов
Скворечник из винных пробок сложно не оценить по достоинству! Чтобы создать такую красоту вам понадобится: готовый скворечник, винные пробки, клеевой пистолет, острый ножик.
Приклейте винные пробки горизонтально к стенкам скворечника, затем вертикально – по центру там, где находится отверстие леток.
Порежьте винные пробки на тонкие кружочки и приклейте их к крыше скворечника как черепицу.
Распишите скворечник водостойкими красками, и он будет выглядеть стильно, ярко и эксклюзивно!
Скворечник из лозы – самый интересный домик для птичек!
Не спешите выкидывать старую обувь! Ведь даже из неё можно сделать домик для пернатых.
Удалите мякоть из тыквы, высушите её и сделайте скворечник!
Задекорировать скворечник можно как угодно, главное проявить фантазию!
Смастерить скворечник из картона не составит большого труда.
А для птичек такой домик прослужит целый сезон. Защитите скворечник от влаги, покрыв картон лаком.
Не спешите выкидывать пластиковые бутылки и сделайте домик для птиц. На создание такого скворечника у Вас не уйдёт много времени! Пофантазируйте и создайте хороший дом для птиц любой формы. Творите с настроением и любовью, тогда всё получится!
Делать домики для птиц своими руками интересное и полезное занятие. Повесьте скворечник в своём саду, на даче и с удовольствием наблюдайте за семейством пернатых!
Загрузка…
Источник: https://svoimirukamy.com/skvorechnik-svoimi-rukami.html
Как сделать скворечник своими руками, чертежи, схемы, идеи
На данный момент в больших городах мало дуплистых деревьев, и птичкам тяжело найти себе домик. Давайте поможем им и сделаем скворечник своими руками. Таким образом, мы спасём птиц от холода. В этой статье мы рассмотрим: как сделать скворечник своими руками?
Техника безопасности
- Используйте полотняные перчатки, чтобы не загнать занозу.

- Наденьте защитные очки, чтобы опилки не попали в глаза.
- Рабочий инструмент (нож, пила) должен быть острым. Помните, что тупым инструментом легко поранится, он плохо фиксируется в дереве и норовит соскользнуть.
- Проверьте исправность электроинструментов.
- Воспользуйтесь лестницей при подвешивании готового скворечника.
- Если вы хотите покрасить скворечник, используйте краску без запаха на водной основе не ярких цветов. Старайтесь чтобы домик для птиц был незаметным для хищников.
Из чего сделать скворечник?
Лучшим материалом для изготовления скворечника является натуральное дерево лиственных пород, например: дуб, осина, липа, берёза. Также для скворечника подойдут ДВП (древесноволокнистые плиты), ДСП (древесностружечные плиты), и фанера. Можно использовать плотный картон, однако такой скворечник прослужит только пару месяцев. Не стоит использовать хвойное дерево, так как оно выделяет липкую смолу и негативно влияет на здоровье птиц.
Мастер-класс изготовления скворечника
Вам понадобится: необработанные доски лиственных пород, гвозди длинной 4 см, пропитка либо нетоксичная краска на водной основе без запаха (по желанию), ножовка либо электролобзик, рулетка, молоток, карандаш, дрель с фрезой на 5 см, кисточка.
- Ознакомьтесь с размерами скворечника указанными на изображении и приступайте к работе.
- Сделайте разметку досок, используя рулетку.
- Нарежьте доски с помощью ножовки либо электролобзика.
- Проделайте отверстие-леток с помощью дрели с фрезой на 5 см.
- Набейте предварительно гвозди с наружных сторон стенок в местах соединения.
- Установите жёрдочку под отверстием, используя дрель.
- Последовательно соберите скворечник.
- Покрасьте скворечник и задекорируйте на свой вкус (по желанию).
- Повесьте скворечник на высоту от 3 метров с небольшим наклоном вперёд, чтобы внутрь не попадала влага.
Домик для птичек готов! Рекомендую к просмотру видео мастер-класс!
Чертежи скворечников
Представляем вашему вниманию варианты чертежей будущих скворечников.
Во время сборки скворечника не пренебрегайте правилами техники безопасности описанной выше.
Чертёж№1 Скворечник со скатом к задней стенке
Чертёж№2 Скворечник с односкатной крышей
Чертёж№3 Скворечник с двухскатной крышей
Рекомендую к просмотру видео мастер-класс!
СКВОРЕЧНИК СВОИМИ РУКАМИ | КАК СДЕЛАТЬ, ЧТОБЫ ПОСЕЛИЛИСЬ ПТИЦЫ!
Watch this video on YouTube
Последовательность сборки скворечника
- Соедините переднюю стенку с боковыми стенками, забейте гвозди по краям и центру доски. (Должна получится П-образная конструкция).
- Соберите заднюю стенку и низ конструкции таким же методом.
- Прибейте ко дну деревянный штапик, для закругления внутренних углов.
- Не забывайте фиксировать гвоздями все элементы будущего скворечника.
- Сделайте съёмную крышу скворечника, чтобы в дальнейшем чистить домик для птиц. Она должна состоять из двух деталей основной части и втулки.
- Крыша скворечника должна выступать за габариты самого скворечника со стороны фасада, чтобы внутрь скворечника не попадали осадки.
- Установите дощечку либо жёрдочку перед входом в домик.
Как закрепить скворечник?
- Выберите место для установки скворечника, это может быть дерево, столб, либо крыша дома.
- Высота крепления скворечника должна быть не меньше 3х метров.
- Во время закрепления скворечника наклоните его вперёд, чтобы внутрь не попадала влага.
- К живому дереву лучше прикрепить скворечник с помощью проволоки либо верёвки.
- К другим поверхностям можно прикрепить скворечник, используя гвозди и молоток.
- Скворечник должен находиться в теньке, чтобы на него не попадали прямые солнечные лучи, и домик для птиц не нагревался.
- Отверстие-леток должен быть направлен в противоположную сторону от ветра.
- Не устанавливайте скворечники рядом – скворцы не любят соседей.
Рекомендую к просмотру данное видео!
Идеи для скворечников из подручных материалов
Скворечник из винных пробок сложно не оценить по достоинству! Чтобы создать такую красоту вам понадобится: готовый скворечник, винные пробки, клеевой пистолет, острый ножик. Приклейте винные пробки горизонтально к стенкам скворечника, затем вертикально – по центру там, где находится отверстие леток. Порежьте винные пробки на тонкие кружочки и приклейте их к крыше скворечника как черепицу.
Распишите скворечник водостойкими красками, и он будет выглядеть стильно, ярко и эксклюзивно!
Скворечник из лозы – самый интересный домик для птичек!
Не спешите выкидывать старую обувь! Ведь даже из неё можно сделать домик для пернатых.
Удалите мякоть из тыквы, высушите её и сделайте скворечник!
Задекорировать скворечник можно как угодно, главное проявить фантазию!
Смастерить скворечник из картона не составит большого труда. А для птичек такой домик прослужит целый сезон. Защитите скворечник от влаги, покрыв картон лаком.
Не спешите выкидывать пластиковые бутылки и сделайте домик для птиц. На создание такого скворечника у Вас не уйдёт много времени! Пофантазируйте и создайте хороший дом для птиц любой формы. Творите с настроением и любовью, тогда всё получится!
Делать домики для птиц своими руками интересное и полезное занятие. Повесьте скворечник в своём саду, на даче и с удовольствием наблюдайте за семейством пернатых!
27 бесплатных планов скворечников своими руками, которые вы можете построить сегодня
Эти бесплатные планы скворечников включают в себя все, что вам нужно, чтобы построить скворечник для своего двора. Вы найдете подробные инструкции, схемы, фотографии, а также списки материалов и расходных материалов. Некоторые из планов даже включают видео и советы пользователей.
Строительство скворечника — отличный проект для новичков, но более подробная информация может сделать его отличным проектом для более продвинутого плотника. Даже дети могут справиться с простым планом скворечника с небольшой помощью взрослых.
После того, как вы построите скворечник, подумайте о том, чтобы построить одну из этих кормушек для птиц своими руками.
Выбор бесплатного плана птичника
Прежде чем выбрать бесплатный план птичьего домика своими руками, вы захотите решить, где вы собираетесь поставить готовый домик. Это поможет вам определиться, какой тип скворечника (дерево, подвес, столб и т. Д.) И размер выбрать.
Некоторые скворечники лучше других подходят для определенных видов птиц. Выберите план с разумным размером входного отверстия и размером, позволяющим птицам достаточно места для гнездования.
Ель / Элисон ЧинкотаПланы бесплатных птичьих домиков
Вот бесплатные планы скворечников. Вы найдете все, от простых скворечников до более совершенных домов. Обязательно нажимайте на каждую ссылку, чтобы найти инструкции, схемы и фотографии.
Базовый план скворечника: вот бесплатный план скворечника, который отлично подойдет начинающему плотнику или тем, кто ищет быстрый проект.
Одноплатный скворечник своими руками: это невероятно простой план скворечника, для изготовления которого используется всего одна сосновая доска.
План скворечника на заднем дворе: вот очень классный бесплатный план скворечника, который заставит ваших птиц на заднем дворе почувствовать себя королевскими особами.
План современного скворечника: для создания этого современного скворечника используется только половина планки из кедрового забора.
План подвесного скворечника DIY: этот сосновый скворечник висит на цепочке, которую вы можете повесить на дереве или конструкции.
Современный скворечник: создайте современный скворечник с А-образной рамой, который сочетает в себе прибрежный стиль из натуральной березы и окрашенного в белый цвет дерева.
Мечтайте немного большеКак построить скворечник: Всего из одной доски можно построить этот стильный скворечник, который прослужит долгие годы.
План птичьего домика Красной церкви: Этот план построит вам ярко-красную церковь для ваших птиц.
План скворечника на шесте: используйте этот бесплатный план, чтобы построить простой скворечник на столбе, который можно поставить в землю.
Птичий скворечник: вот план скворечника, в котором птицам на заднем дворе будет уютно всю зиму.
Бесплатный план скворечника: вот план скворечника для начинающих, который побуждает вас изменить план по мере необходимости для вашего пространства.
Номерной знак Скворечника: Большая часть этого скворечника построена из дерева, но металлический номерной знак составляет крышу.
Простой план птичьего домика: этот план даст вам очень простой и понятный скворечник, который можно прибить к дереву или столбу.
План птичьего домика с зеленой крышей: крапивникам и синицам особенно понравится этот скворечник, на котором вы можете выращивать растения и цветы.
DIY Bluebird House: этот план скворечника отличается великолепным дизайном, который можно собрать днем.
Мечтайте немного большеСделай сам скворечник с красивой пенни-крышей: это проект без строительства, в котором вы берете существующий скворечник и добавляете немного краски на симпатичную крышу.
Чайный домик для птиц: Нет, это не скворечник из чашки, это деревянный скворечник в форме чайной чашки.
Причудливый план скворечника: вам действительно нужно проверить этот бесплатный план скворечника, это действительно произведение функционального искусства.
План скворечника Высокого Техаса: Этот план скворечника Высокого Техаса обязательно привлечет много птиц этой весной.
План скворечника своими руками: вот план простого скворечника, который защитит птиц и позволит им сидеть на улице.
Сэди СизонгудзСкворечник с часами: этот проект своими руками доказывает, что скворечник можно сделать практически из чего угодно! Эти инструкции покажут вам, как купить старые часы и превратить их в новый дом для птиц.
Домики для птиц Bluebird: вашим птицам понравятся эти простые скворечники, которые прибиты к деревьям.
Бревенчатые птичьи домики: сделайте своих птиц домом в стиле бревенчатой хижины, и они захотят остаться там навсегда.
Современный скворечник: не все скворечники должны быть скучными, а этот современный заставит вас улыбнуться.
Дом Bluebird: вот еще один план скворечника своими руками, это отличный классический стиль, который будет отлично смотреться в любом дворе.
Скворечник «Сделай сам»: это базовый план простого скворечника «сделай сам». Это было бы отличным решением для детей.
Деревенский скворечник: это скорее проект перестройки скворечника, а не строительного. Существующий скворечник был взят и покрыт ветками и мхом, чтобы придать ему красивый деревенский вид.
Дополнительные бесплатные планы для деревообработки
Ищете свой следующий проект? У меня есть куча бесплатных планов для дома, включая бесплатные планы, которые помогут вам построить стол для пикника, сарай, домик на дереве, курятник, шкатулку для драгоценностей и многое другое.
Как построить скворечник | HowToSpecialist
Эта статья про как построить скворечник .Строительство домиков для птиц — увлекательный проект, особенно если вы покажете своим детям, как работать с несколькими инструментами и как использовать обычную деревянную доску для создания чего-то уникального. С другой стороны, вы можете построить простой и дешевый скворечник (около 2-5 долларов в зависимости от сложности) и подарить его кому-то особенному. Все, что вам нужно, чтобы выполнить работу менее чем за час, — это использовать деревянную доску шириной 6 дюймов и несколько основных инструментов (лобзик и дрель со сверлом для кольцевой пилы). Тем не менее, прежде чем покупать материалы или использовать отходы, нужно нарисовать план, начиная с размеров деревянного домика для птиц и заканчивая его окончательным дизайном.Исходя из нашего опыта, мы рекомендуем вам с самого начала определиться с дизайном вашего декоративного скворечника, иначе вам может не понравиться его окончательная форма.
Помните, что вам нужно использовать хорошую деревянную доску , иначе ваш скворечник может оказаться не таким прочным, как вы планировали. Кроме того, убедитесь, что древесина не обработана токсичными веществами, если вы планируете установить ее на заднем дворе. С другой стороны, если вы хотите получить уникальный дизайн, вы можете повторно использовать несколько старых деревянных досок, предварительно убедившись, что они не гнилые.И последнее, но не менее важное: доски должны иметь одинаковую толщину по всей поверхности и быть как можно более прямыми.
Для того, чтобы выполнить работу профессионально, вам следует использовать несколько инструментов . Прежде всего, вам понадобится лобзик или циркулярная пила, чтобы распилить основные компоненты скворечника, но подойдет и ручная пила, хотя это займет больше времени. Далее, если вы хотите получить аккуратный результат, рекомендуем вырезать круглый вход с помощью сверла для кольцевой пилы и сверлильного станка.И последнее, но не менее важное: вам понадобится молоток, чтобы забить отделочные гвозди при скреплении скворечника.
Сделано из этого плана
Строительство деревянного домика для птиц
Как построить скворечник
Материалы
- A — 2 куска пиломатериалов 1 × 6 — длина 5 ″ x 9 ″ ЛИЦА
- B — 2 куска пиломатериалов 1 × 6 — длина 4 ″ x 6 1/2 ″ СТОРОНЫ
- C — 1 кусок пиломатериала 1 × 6 — длина 4 1/2 ″ x 8, 1 кусок — длина 5 1/2 ″ x 8 ″ КРЫША
- D — 1 кусок пиломатериала 1 × 6 — длина 3 1/2 ″ x 4 ″ НИЖНИЙ
Инструменты
Подсказки
- Дизайн скворечника, перед запуском проекта
- Используйте качественные деревянные доски
- Просверлите пилотные отверстия перед тем, как забивать гвозди, чтобы не расколоть дерево
Время
Связанные
Как построить скворечник
Проекты птичников
Step 1: Определитесь с размерами вашего простого в сборке скворечника.Если вы раньше не строили скворечник или вам нравится наш проект, вам следует использовать планы скворечников, которые вы видите на картинке. Строить скворечник намного проще, если вы знаете его размеры и конструкцию с самого начала своего проекта.
Не забывайте, что эти размеры являются отправной точкой, и вы можете отрегулировать их в соответствии со своими потребностями и вкусами.
Инструменты для постройки птичьего домика
Шаг 2: Используйте правильные инструменты для профессионального выполнения работы.Поэтому мы рекомендуем вам использовать L-образный угольник для рисования компонентов на доске, лобзик или циркулярную пилу, чтобы вырезать деревянные части, и кольцевую пилу, чтобы вырезать круглый вход в скворечник.
Умный наконечник: Мы рекомендуем предварительно просверлить отверстия по краям деревянных деталей перед тем, как забивать гвозди, иначе древесина может расколоться.Чертеж переднего и фронтального торцов
Шаг 3: Отметьте компоненты на деревянных досках с помощью L-образного угольника и столярного карандаша.Работайте с большой осторожностью и убедитесь, что вы используете правильные размеры, иначе детали не выровняются должным образом.
Умный совет: Внимательно проверяйте деревянную доску перед тем, как рисовать детали, и старайтесь избегать поврежденных участков.Распил деревянных досок лобзиком
Шаг 4: С помощью лобзика или циркулярной пилы обрежьте боковые стороны, а также переднюю и заднюю части скворечника. Мы рекомендуем вам зафиксировать деревянную доску на месте перед тем, как разрезать ее, иначе она может сдвинуться и повредить компоненты.
Умный совет: Если у вас нет опыта работы с электроинструментом и вы хотите резать прямые линии как профессионал, вам следует ознакомиться с нашей статьей об этих методах.Обрезка переднего и заднего фронтонов
Остался обрезать еще один конец фронтона. Передняя часть скворечника вырезана по направляющим линиям
.Рисуем стороны домиков для птиц
Шаг 5: Отметьте стороны скворечника на деревянной доске и вырежьте их так же, как описано выше.Мы рекомендуем вам использовать L-образный угольник, чтобы правильно провести направляющие линии, в противном случае углы могут быть неправильными.
При резке доски циркулярной пилой или лобзиком работайте с особой осторожностью и используйте защитные очки.
Передний и задний торцы и боковины скворечника
Обрезаны основные элементы скворечника: передний и задний торцы фронтона и борта. Если вы следовали нашим советам, они должны быть равны (передняя часть с задней, боковые стороны) и правильно выровнены.
Сглаживание краев пескоструйным блоком
Шаг 6: Используйте песчаный блок, чтобы сгладить острые края деревянных деталей. Работайте очень осторожно и несколько раз проведите песчаным блоком по краям, пока они не станут достаточно гладкими на ваш вкус.
Умный совет: Используйте наждачную бумагу средней зернистости, если вы хотите выполнить работу быстро и профессионально.Крупный план с краями скворечников
Закройте края.Как видите, разница заметна, но нам все равно придется отшлифовать ее несколько раз, чтобы получить желаемый результат.
Строительство домиков для птиц
Нанесение клея на края
Шаг 7: Нанесите столярный клей по краям боковых компонентов, как на изображении. Несмотря на то, что использование столярного клея не обязательно, мы рекомендуем его использовать, так как он увеличит сцепление между деревянными деталями. Кроме того, если детали не были вырезаны идеально ровно, клей заполнит небольшие промежутки, и воздух не попадет в птичник.
Умный совет: Подождите одну минуту до соединения двух деревянных частей.Склейка деревянной детали
Шаг 8: Соедините переднюю и боковую части скворечника вместе, как вы можете видеть на изображении, убедившись, что компоненты выровнены правильно. Работайте с большой осторожностью и плотно прижмите передний конец к стенке скворечника.
Фиксация компонентов с помощью струбцин
Шаг 9: Мы рекомендуем использовать несколько C-образных зажимов, чтобы плотно зафиксировать компоненты, и дать клею высохнуть в течение примерно 5 минут.
Вы должны заметить, что обе части скворечника выровнены правильно, а угол расположен под прямым углом. Даже если эти аспекты могут показаться незначительными деталями, рекомендуем обратить внимание, если вы хотите построить прочный скворечник.
Сверление пилотных отверстий перед забиванием гвоздей
Шаг 10: Просверлите пилотные отверстия перед тем, как вставить чистовые гвозди, иначе древесина может расколоться. Кроме того, мы рекомендуем оставлять минимум 1/2 дюйма от краев деревянной доски, чтобы древесина не раскалывалась.
Двух гвоздей с каждой стороны переднего торца фронтона достаточно, чтобы надежно закрепить скворечник.
Соединение передней и боковых сторон скворечника
Шаг 11: Вставьте гвозди в направляющие отверстия с помощью молотка. Исходя из нашего опыта, мы не рекомендуем использовать слишком большое усилие при ударе по гвоздям, так как вы легко можете повредить дерево.
Умный совет: Поместите скворечник на деревянный брусок, забивая гвозди, чтобы не повредить пол / стол, на котором вы работаете.Крепление второй стороны скворечника
Шаг 12: Присоедините другую сторону скворечника, как описано выше. Сначала необходимо просверлить два пилотных отверстия по краям передней части.
Работайте с терпением и убедитесь, что вы правильно выровняли компоненты, прежде чем сверлить отверстия. Несколько раз проверьте, чтобы углы были под прямым углом.
Сверление пилотных отверстий в деревянных деталях
Шаг 13: Прикрепите задний конец фронтона к скворечнику.Строить скворечники легко, если вы обрезали деревянные части нужного размера и использовали правильные планы и методы.
Просверлите пилотные отверстия по боковым краям заднего фронтона и вставьте чистовые гвозди с помощью молотка.
Обмер места подъезда
Шаг 14: Отметьте центр круглого входа. Для того, чтобы сделать это профессионально, вы должны сделать отметку по центру от торца.С помощью L-образного квадрата измерьте центр третьего домика и отметьте его столярным карандашом.
Обычно скворечники должны располагаться ближе к верху передней части, но вы должны установить это в соответствии с вашими потребностями и яичками.
Вырезка входа в скворечник
Шаг 15: Просверлите круглый вход в скворечник. Чтобы вырезать вход, можно использовать несколько приемов и инструментов. Исходя из нашего опыта, мы считаем, что сверло для кольцевой пилы будет делать самые быстрые и точные пропилы.Тем не менее, вы можете разметить отверстие, просверлить стартовое отверстие и выпилить его лобзиком.
Независимо от вашего выбора, отверстие должно быть около 1 1/4 — 1 1/2 дюйма , по мнению арендаторов.
Круглый вход в скворечник
После того, как вы прорезали круглый вход, следует тщательно очистить скворечник пылесосом. Как вы можете видеть на изображении, деревянный ящик начинает напоминать настоящий скворечник.
Строительство крыши птичника
Крепление крыши птичника
Шаг 16: Отрежьте узкую часть крыши и установите ее на место.Чтобы получить аккуратный вид, мы обычно разрезаем крышу на 1 1/2 больше во всех направлениях (кроме верха). Таким образом, крыша будет свисать и создавать красивый эффект.
Забейте по два гвоздя с каждой стороны крыши и не забудьте нанести клей. Перед тем, как вставить гвозди, убедитесь, что узкая сторона крыши идеально выровнена во всех направлениях.
Предварительное сверление отверстий перед забивкой гвоздей
Шаг 17: Присоедините другую сторону крыши.Прежде всего, вы должны отрезать ее немного длиннее первой стороны (добавьте толщину используемой древесины), так как она должна покрывать первую часть.
После того, как вы установите его на место и убедитесь, что он идеально совмещен с другими компонентами, вам следует предварительно просверлить два отверстия с каждой стороны, используя сверлильный станок с контролем крутящего момента и небольшое сверло.
Забивание гвоздей для фиксации крыши
Затем закрепите крышу, забив гвозди в пилотные отверстия.Эта процедура проста, просто убедитесь, что вы не смещаете крышу с места, вставляя гвозди.
Как построить пол скворечника
Устройство пола скворечника
Шаг 18: Постройте пол и прикрепите его к скворечнику. Сначала с помощью рулетки определите размеры пола. Затем используйте лобзик и обрежьте пол на 1/8 меньше, иначе вам, возможно, придется заставить его встать на место.
В большинстве случаев мы запираем пол в скворечнике, забивая несколько гвоздей, так как птицы уберут его сами. Тем не менее, вы должны знать, что вы можете прикрепить пол к скворечнику с помощью петель, если хотите иметь к нему доступ в любое время.
Устройство пола в скворечнике
Мы несколько раз слегка ударились об пол, чтобы он встал на место. Перед тем, как забивать гвозди, убедитесь, что он идеально выровнен по бокам.
Крепление пола финишными гвоздями
Во-первых, с помощью дрели и небольшого сверла проделайте пилотные отверстия на каждой стороне скворечника. Затем вставьте гвозди с помощью молотка. Работайте очень осторожно, чтобы дерево не раскололо.
Строительство птичника
Умный совет: Наш простой в сборке скворечник почти готов. Все, что нам нужно сделать, это установить его насест и решить, как его повесить на дерево.Строительство насеста для скворечника
Бурение в скворечнике
Шаг 18: Используйте дрель и сверло среднего размера, чтобы проделать отверстие примерно на 2 дюйма под входом в скворечник. Если древесина достаточно толстая, мы не рекомендуем сверлить отверстие полностью. Таким образом, вы сможете установить жердочку незаметно изнутри птичника.
Нанесение клея в просверленное отверстие
Залейте небольшое количество столярного клея в отверстие и добавьте немного стружки в смесь.Таким образом, клей и стружка зафиксируют окунь на месте.
Установка насеста скворечника
Вы можете использовать небольшую веточку или карандаш, чтобы построить жердочку. Оба решения хороши, поэтому выбор первого или второго варианта зависит от вашего вкуса. Независимо от вашего выбора, вставьте карандаш / веточку в отверстие и совместите ее с домиком для птиц во всех направлениях.
Как построить скворечник
После установки жердочки скворечник готов встречать своих жильцов.Просто убедитесь, что вы повесили его на дереве на высоте 6 футов / 2 м над землей, чтобы кошки не подпускали к нему.
Умный наконечник: Чтобы повесить его на деревья, вы должны использовать подходящую фурнитуру и кусок проволоки или небольшую цепь. Независимо от вашего выбора, мы надеемся, что новый скворечник украсит ваш задний двор и станет уютным домом для ваших любимых птиц.Спасибо, что прочитали нашу статью о как построить скворечник , и мы рекомендуем вам ознакомиться с остальными нашими проектами.Не забывайте делиться нашими статьями с друзьями, используя виджеты социальных сетей. НРАВИТСЯ, что мы первыми получаем наши обновления и помогаем нам добавлять больше бесплатных планов.
Bird House Project
Вы будете проектировать скворечник для конкретной птицы. были назначены. Скворечник будет вашим дизайном, но он должен соответствовать потребности конкретного вида птиц.Каждый человек напишет небольшой раздел о видах птиц и планах снабжения скворечником, который удовлетворяет предпочтения этого вида.В планах будет полная список запчастей всех материалов, необходимых для постройки скворечника. Человек, читающий планы должны быть в состоянии узнать о птице и ее среде обитания, а также построить скворечник из предоставленных планов.
Вам будет назначен вид птиц, но при желании вы можете спроектировать домик для летучих мышей или бабочек вместо ваш вид птиц. Я надеюсь получить один или два дизайна домиков с летучими мышами и бабочками.
Детали проектаДанный проект будет завершен согласно Проекту. процесс представлен в классе.
Конечный продукт, который доставит вам , — это посылка что будет содержать:
— Письменное описание вида птиц
— Чертеж скворечника в трех видах (сделано с помощью Cadkey)
— Эскизный графический вид скворечника в наклонном или изометрический
— Полный список деталей, содержащий все детали, необходимые для сборки скворечник
Как поступитьСледующие шаги описывают, как это сделать. проект.Используйте панель навигации слева, чтобы найти информацию о каждом шаге. проекта. Прочтите все шагов перед началом проекта.
Откройте пустой буклет презентации и сохраните его в ваш каталог. Шаг первый поможет вам определить, какую птицу вам назначили. Отредактируйте свою копию буклета презентации, указав свою птицу и свое имя. пр.
Шаг второй поможет вам написать отзыв о вашей птице. (или домик бабочки или летучей мыши).Используйте ссылку на исследовательские сайты на панели навигации. слева для информации. Есть много информации, доступной через эти ссылки. Вы добавите это в буклет для презентации. Когда это завершено, вы распечатаете первые страницы буклета и отдадите их для обзор и выставление оценок.
Шаг третий советует вам провести небольшое исследование. Есть образец домики для всех назначенных птиц, а также образцы домиков летучих мышей и бабочек дома. Используйте их для идей. Не копируйте их просто так.Нарисуйте несколько дизайнов, чтобы определите, как вы хотите, чтобы ваш дом выглядел. Сдайте их на рассмотрение.
Шаг четвертый расскажет, что вам нужно для работы рисунки. Заполните чертежи и передайте их на рассмотрение. Класс будет узнайте, как включить их в буклет для презентации. Рисунки Cadkey могут быть добавленным как объект в документ Word. Остальные придется наклеить после печать.
Шаг пятый говорит вам, каким должен быть готовый продукт. содержать. Ваша завершенная презентация буклет будет передан для финальной оценки.
Теперь перейдите по ссылкам и повеселитесь.
Проблема
Ваша задача — спроектировать скворечник, который будет быть из дерева. Вы будете проектировать скворечник для закрепленного за вами вида птиц. Помните, вы можете решили спроектировать вместо скворечника домик для летучей мыши или домик для бабочек. Ты решать!
В любом случае щелкните ниже, чтобы найти назначенный вам вид.
Прокрутите вниз, чтобы найти номер своего места.Справа — задание вашей птицы!
Изучите свою птицу
В какой части страны находится это жить?
Как это выглядит?
Все уникальное, что можно обсудить об этой птице?
Какой дом он предпочитает?
Размер пола в дюймах
Глубина полости
Диаметр отверстия
Высота отверстия
Какой высоты должен быть скворечник установлен?
Предпочтительное расположение скворечника
Используя слово Microsoft, напишите описание птицы, который, как минимум, отвечает на поставленные выше вопросы.Это будет первый часть вашего презентационного буклета. Чтобы создать буклет для презентации, откройте пустой буклет презентации и сохраните его в своем каталоге. Затем используйте его как шаблон для вашей работы. Чем больше интересного вы напишете, тем лучше будете комплектация будет.
Обязательно укажите на сайте свои источники информации. Бланк В буклете с презентацией есть место, где вы можете разместить свои источники.
Разработайте возможные решения.
Проведите небольшое исследование, чтобы найти решения той же проблемы.Посмотрите у некоторых конструкций скворечников.
Сделайте набросок вашего дизайна. Создайте свой скворечник для своего вида птицы. Вы можете добавить некоторые дополнения, чтобы сделать его более интересным. Убедись, что ты соответствовать требованиям дизайна для вашего вида.
Подготовка рабочих чертежей
Подготовьте трехмерный чертеж вашего скворечника с тремя размерами с помощью Cadkey.
Подготовьте наглядный вид в наклонном или изометрическом виде вашего скворечник. Это может быть эскиз или рисунок Cadkey.
Заполните «ведомость материалов», включая часть название, материалы, размеры и количество.Вы найдете шаблон для деталей список в бланке буклет-презентация. Не забудьте указать толщину древесины. Обычно вы будете используйте древесину 1/2 или 3/4 дюйма. Более тонкую древесину сложно скрепить. Перечислите тип используемого крепежа. Обычно это гвозди или маленькие шурупы.
Вы можете создавать Cadkey чертежи любых «особых деталей». которые нужны для вашего скворечника.
Все, что нужно знать, чтобы построить Скворечник должен быть создан на этом этапе.
Соедините все части вашего проекта вместе. Чтобы создать свой окончательный дизайн-пакет, используйте бланк буклет презентации, который вы сохранили в своем каталоге и объедините это с вашим эскизом и чертежами Cadkey.
В буклете, который вы сдадите, будет:
— Ваше письменное описание вида птиц с указанием источников.
— Ваш рисунок скворечника с тремя видами (сделанный с помощью Cadkey)
— Графический рисунок вашего скворечника
— В полный список деталей, содержащий все детали, необходимые для постройки скворечника
— Кэдки чертежи любых созданных вами «особых деталей».
Следующие предметы необходимо сдать в соответствии с график мы установили. Ты сможешь сдавайте их для выставления оценок по мере их заполнения.
Письменное описание птицы | |
Эскизы возможных решений | |
Чертежи Cadkey | |
Эскиз | |
Спецификация материалов (список запчастей) | |
Завершение буклета финальной презентации |
Когда вы получите эти предметы обратно, вы сохраните их и положите их вместе, чтобы составить буклет с окончательной презентацией дизайна.Это будет сдал для вашей последней оценки.
Оценка будет основываться на следующем:
Страница письменных исследований
Очков | |
Точность для птиц разновидность | 20 |
Информационная и интересно | 20 |
Организовано, хорошо структурирован и написан собственными словами | 20 |
Включает все необходимое Информация | 20 |
Включает источники Информация | 20 |
Чертежи
Рисунки будут оцениваться в соответствии с установленным политика выставления оценок.
Итоговая оценка
Окончательная оценка проекта будет определяться в соответствии с следующий:
| Процесс | Очков |
Работает в организованном манера | 5 |
разумно распоряжается временем | 5 |
Соответствует дизайну процесс | 10 |
| Товар | |
Отвечает требованиям для видов птиц | 20 |
Демонстрирует знание Cadkey | 20 |
Демонстрирует хорошо навыки технического рисования | 20 |
Планы скворечников ясно и легко следовать | 20 |
Творчество | 10 |
Процесс проектирования
- УКАЗАТЬ ПРОБЛЕМУ ЧЕТКО:
- Решение любой проблемы начинается с точного знания того, что это за проблема является.
- Обсудите проблему со своим клиентом и оцените его потребности.
— Сколько это должно стоить?
— Как это будет сделано?
— Как это должно выглядеть?
— Как это будет использоваться?
- СОБИРАТЬ ИНФОРМАЦИЮ:
- Дизайнеры собирают информацию из многих источников, таких как исследования, эксперименты и опросы.
- Посмотрите на исторические решения тех же или похожих проблем.
- РАЗРАБОТАТЬ ВОЗМОЖНЫЕ РЕШЕНИЯ:
- Часто дизайнер встречается с другими, чтобы обменяться идеями и обсудить возможные решения.
- Производственные процессы. Как мы будем делать продукт?
- Маркетинг и продажи. Будет ли продаваться? Как мы будем его продавать?
- Эстетика, воздействие на окружающую среду, социологическое воздействие, безопасность.
- ВИЗУАЛИЗАЦИЯ:
- Эскиз: как это будет выглядеть?
- Рисунки, модели
- ВЫБЕРИТЕ ЛУЧШЕЕ РЕШЕНИЕ:
- Решит ли продукт проблему?
- Можно ли производить по разумной цене?
- Удовлетворяет ли это нашим целям дизайна?
- РАБОЧИЕ ЧЕРТЕЖИ:
- Создание полного набора чертежей для серийного прототипа
- Рабочие чертежи содержат всю информацию, необходимую для изготовления продукт
- ПРОТОТИП
- Разработать прототип продукта
- ОЦЕНИТЬ РЕШЕНИЕ:
- Полевые испытания
- Сработало так, как задумано?
- Если нет, то что пошло не так и почему?
- Иногда процесс необходимо повторить.
- ВЫПОЛНИТЬ РЕШЕНИЕ:
- Массовое производство
- Маркетинг
- Продажи
- Распределение
Таблица размеров скворечника — потому что один размер не подходит всем |
Наблюдать за птицами, которые заглядывают за птичьим кормом, — это лишь половина удовольствия от наблюдения за птицами на заднем дворе: когда вы предоставите скворечник, вы получите больше удовольствия. Один размер не подходит для всех птиц, но тот, который соответствует размеру и хорошо расположен, позволит вам наблюдать за их семейной жизнью, от строительства гнезд до ухода за птенцами.Если повезет (или с камерой, активируемой движением), вы даже можете увидеть, как птенцы покидают свое гнездо.
Около восьмидесяти пяти видов птиц в Соединенных Штатах гнездятся в дуплах мертвых или умирающих деревьев. В городах такие деревья обычно вырубают и вывозят, оставляя подходящие варианты для гнездования в ужасающем дефиците. (За пределами города не намного лучше — разрушение среды обитания уже приводит к гибели популяций некоторых птиц.) Таким образом, предоставление скворечника (или двух или трех!) Помогает облегчить их борьбу.
Птицы привередливы
Каждый вид ищет место для гнездования, которое соответствует относительно узкому диапазону спецификаций. Во-первых, он должен напоминать, хотя бы внешне, полость в дереве. Входное отверстие должно быть достаточно большим, чтобы легко входить и выходить, но достаточно маленьким, чтобы они чувствовали себя скрытыми и безопасными. Например, небольшое отверстие в домике для крапивника помогает защитить его от хищников, а также не позволяет более крупным птицам захватить его.
Цвет имеет значение. Многочисленные милые скворечники на рынке украшены яркими красками, орнаментами и гаджетами.Но поскольку птицы ищут «деревья» и маскировку, привлечь их к ним может быть труднее. Птиц по большому счету привлекают земные тона.
Вы обнаружите, что в большинстве магазинов бытовой техники и товаров общего назначения есть скворечники для крапивников, синих птиц, пурпурных мартинов, визжащих сов, а иногда и для деревянных уток. Другие источники — магазины птичьего корма и интернет. В магазинах со скидками продаются недорогие скворечники, которые обычно оказываются примерами того, за что мы платим: древесина, непригодная для длительного использования, скобы вместо винтов, пластмассы (которые не «дышат») и отсутствие легкого открывания. для чистки.На что обратить внимание в качественном скворечнике
Около тридцати видов, гнездящихся в дуплах, готовы использовать скворечники. Эта диаграмма поможет вам выбрать (или построить) именно тот, который нужен.
| Птица | Диаметр отверстия | Дюймы над полом | Размер пола | Стороны | Футы над землей |
|---|---|---|---|---|---|
| Сипуха | 6 | 4 | 10 x 18 | 15 x 18 | 12 x 18 |
| Ласточка для сарая | 1 или несколько открытых сторон | 1 или несколько открытых сторон | 6 x 6 | 6 | 8-12 |
| Bewick’s Wren | 1 — 1-1 / 4 | 1-6 | 4 x 4 | 6 x 8 | 6-10 |
| Bluebird | 1-1 / 2 | 6 | 5 X 5 | 8 | 5-10 |
| Каролина Ррен | 1-1 / 2 | 1-6 | 4 x 4 | 6 x 8 | 6-10 |
| Голуби | 1 или несколько открытых сторон | 1 или несколько открытых сторон | 12 x 12 | 9 | 12-15 |
| Пушистый дятел | 1-1 / 4 | 6-8 | 4 x 4 | 8 x 10 | 6-20 |
| Мерцание | 2-1 / 2 | 14-16 | 7 x 7 | 16-18 | 6-20 |
| Мухоловки | 2 | 6-8 | 6 x 6 | 8-10 | 8-20 |
| Волосатый дятел | 1-1 / 2 | 9-12 | 6 x 6 | 12-15 | 12-20 |
| Домашний зяблик | 2 | 4 | 6 x 6 | 6 | 8-12 |
| Домовый воробей | 1-1 / 4-2 | 6-7 | 4×4 до 5×5 | 9-12 | 6+ |
| Домовой Wren | 1-1 / 8 | 3-6 | 4 x 4 | 6-8 | 6-10 |
| Пустельга | 3 | 9-12 | 8 x 8 | 12-15 | 10-20 |
| Поползни | 1-1 / 4 | 6-8 | 4 x 4 | 8-10 | 12-20 |
| Phoebe | 1 или несколько открытых сторон | 1 или несколько открытых сторон | 6 x 6 | 6 | 8 x 12 |
| Протонотарная камышевка | 1-1 / 8 | 4 x 5 | 5 x 5 | 6 | 4-8 |
| Purple Martins (поместите много домов в тесную группу) | 1-3 / 4 — 2-1 / 4 | 1-2 | 6 x 6 | 6 | 10-15 |
| Краснобрюхий дятел | 2-1 / 2 | 9-12 | 6 x 6 | 12-15 | 10-20 |
| Дятел рыжий | 2 | 9-12 | 6 x 6 | 12-15 | 12-20 |
| Робин | 1 или несколько открытых сторон | 1 или несколько открытых сторон | 6 x 8 | 8 | 6-15 |
| Визжащая сова | 3 | 9-12 | 8 x 8 | 12-15 | 10-20 |
| Sparrow Hawk | 3 | 9-12 | 8 x 8 | 12-15 | 10-30 |
| Синичка | 1-1 / 4 | 6-8 | 4 x 4 | 8-10 | 6-15 |
| Tree Swallow | 1-1 / 2 | 1-5 | 5 x 5 | 6 | 10-15 |
| Wood Duck | 4 | 12-16 | 10-18 | 10-24 | 10-20 |
Дополнительная информация:
Выбирайте скворечник с учетом этих особенностей
Нет весны в шагах голодных весенних птиц
Бедственное положение гнездящихся птиц
Лучшие советы по созданию лучшего скворечника своими руками
Фото: CGardner
Скворечник, сделанный своими руками, может быть настолько простым или детализированным, насколько вам нравится — от базовой формы коробки, построенной с стыковыми соединениями и крышей под 45 градусов, до модели, смоделированной после архитектура, которую вы любите, миниатюрная версия вашего нынешнего дома или та, которая отражает дом вашей «мечты» (это мой, на фото выше).Честно говоря, птицам все равно, как это выглядит, им просто нужен безопасный дом.
Фото: CGardner
Материалы для скворечника своими руками
Какой бы стиль вы ни выбрали для своего скворечника, убедитесь, что он сделан из материалов, устойчивых к погодным условиям.
- Кедр или красное дерево доступны по цене, доступны в размерах 1 x 8 дюймов в любом доме и прослужат долгие годы на открытом воздухе.
- Внешняя фанера (в которой используется клей на основе фенольной смолы для скрепления слоев) также является хорошим вариантом.
- Не используйте , а , используйте пиломатериалы, обработанные , поскольку химические вещества могут быть вредными для птиц.
Материалы должны быть толщиной не менее 3/4 дюйма, чтобы изолировать гнездо в холодное время года.
Если вы только начинаете, вам подойдет простой кедр размером 1 x 8 дюймов. Они могут разрезать его для вас на прилавке пиломатериалов, а вы можете сделать три или четыре из одной 8-дюймовой длины. Также есть преимущество в использовании пиломатериалов с одной шероховатой стороной, так как это поможет молодым птицам покинуть следующую, дав им что-то, за что можно ухватиться.
Советы по созданию лучшего скворечника
Чтобы построить скворечник, который выдержит время и в то же время станет безопасным и привлекательным домом для птиц на заднем дворе, помните следующие главные советы по лучшему строительству:
КРЕПЕЖИ
Чтобы собрать все вместе, 6D оцинкованные гвозди подойдут, но я предпочитаю использовать шурупы и направляющие отверстия, так как погода заставит дерево деформироваться и скручиваться, и в конечном итоге гвозди могут вытащить. Кроме того, убедитесь, что любой клей, который вы используете, предназначен для использования на открытом воздухе.
ОТДЕЛКА
Для завершения используйте светлый морилку или герметик и дайте просвечивать древесину. Если вы предпочитаете окраску, не забудьте выбрать краску для наружных работ землистого цвета, например, зеленого или коричневого; это поможет скворечнику слиться с окружающей средой и заставит птиц почувствовать, что это безопасное место для гнездования.
Фото: curbly.com
Дополнительные советы
- Все скворечники должны иметь одну стенку или съемную крышу, чтобы можно было убирать старые гнезда для новых семей.Скорее всего, птица не будет использовать одно и то же место для гнездования дважды, а новая птица не войдет в дом, который не был очищен.
- Скворечники могут быть построены с учетом видов животных. Птица должна чувствовать себя в безопасности, а дом и вход должны быть достаточно большими . Вам нужно подобрать размер домика и диаметр отверстия для разных видов животных. Вы можете найти подробную информацию для каждого типа птиц на сайте wild-bird-watching.com.
- Обязательно добавьте несколько дренажных отверстий 1/4 ″ в полу.Он поможет сохранить интерьер красивым и сухим.
- Убедитесь, что крыша наклонена и имеет достаточный выступ, чтобы не допустить дождя.
- Не исключайте, что дом открытого типа. Трех стен, пола и скошенной крыши хватит многим видам, которые так же любят болтаться на крыльце, как и вы.
- И знаете что! Не нужно добавлять в скворечник жердочку. Хотя они полезны в качестве кормушки для птиц, птицам они не нужны в доме, и они могут помочь хищникам проникнуть внутрь.
80 Уникальных дизайнов и выкройки скворечников, которые вам нужны сейчас
ДРУЗЬЯ! Что может быть лучше, чем наблюдать за птицами, прилетающими и вылетающими из скворечника и кормящимися на заднем дворе? Хорошо! Это правда, что не все предпочитают заводить на заднем дворе стаю птиц, но тем, кто это делает, стоит взглянуть на уникальные конструкции и узоры скворечников, созданные в этой коллекции. Все эти конструкции нетрудно создать в одиночку, все, что вам нужно, — это немного свободного времени, пара деревянных досок, несколько простых инструментов для работы и, конечно же, некоторые навыки.Более того, нижеприведенные планы предназначены для разных уровней навыков и предназначены для привлечения множества видов птиц, поэтому можно легко построить целый квартал для птиц!
Одноплатный скворечник!
Ура! Что может быть проще впечатляющего скворечника? Действительно интересно узнать, как собрать скворечник из цельной сосновой доски.
Прочный и функциональный скворечник!
Этот красивый курятник, предлагающий достаточно места для вашего цыпленка, входит в число уникальных дизайнов и узоров скворечников.Полный дом состоит из деревянного каркаса с решетчатыми панелями вокруг него.
Патриотический скворечник!
Можно эффектно показать его истинное патриотическое чувство, развесив красно-бело-синий флаг перед главным входом в деревянный скворечник, или выставить его снаружи как место гнездования пернатых птиц.
Rustic Lighthouse Скворечник!
Настоящая красота! Конструкция отличается медной крышей, слайдерами, съемным днищем, дефлекторами и выглядит как настоящий маяк.
Алюминиевый скворечник!
Хотите привнести волшебное настроение в свой уличный декор? Повесьте очаровательный алюминиевый скворечник возле всех окон. Его дизайн и детальная отделка действительно приятно смотреть.
Скворечник на пьедестале Кейп-Код!
Это очень очаровательный узор из скворечников. Он построен на деревянных палках и имеет форму настоящего семейного дома с креативными деталями.
Скворечник итальянской колонии!
Это отличительное украшение для вашего двора и сада.Этот уникальный дизайн и узор скворечника состоит из десяти дверных проемов, приветствующих птиц на всех 3 уровнях.
Круглый скворечник!
Спорим, круглый скворечник оказался одним из уникальных дизайнов и узоров скворечников из-за его невероятного внешнего вида и его удивительно легко сделать из деревянных колец и кедровой черепицы.
Причудливый деревянный скворечник!
Этот пышный красочный скворечник придаст изюминку вашему двору или саду.Причудливые скворечники — отличный источник притяжения для птиц.
Легко расписанный скворечник!
Да, используйте свою любимую цветовую схему, чтобы нарисовать скворечник, который будет выглядеть довольно привлекательно и свежо. Это простая поделка для случайных целей.
Летний скворечник (из дерева)
Это простой в изготовлении скворечник с ярким летним чутьем. Эта узкая конструкция отлично подходит для наружного декора.
Скворечник из мусорного магазина!
Этот скворечник — дешевое украшение для сада, которым вы будете гордиться.Он сделан из деревянных панелей разного размера, а густые листья с небольшими цветами, размещенными по обеим сторонам, придают ему неповторимый и причудливый вид.
Мультяшный скворечник!
Потрясающе на вид, правда! Друзья! Используйте все свои вторсырья с пользой. Этот мультяшный скворечник «сова» кажется одним из уникальных скворечников и орнаментов для двора. Они больше в декоративных целях.
Уникальный скворечник из кедра!
Привлекайте ярких птиц в свой двор с помощью этого скворечника из кедра уникальной формы.Красивое сочетание массивной деревянной конструкции и нежных оттенков должно идеально сочетаться с садом.
Обычный деревянный скворечник!
Если вы живете в квартире, но все же мечтаете о близости к природе и заботе о диких птицах. Это
Обычный деревянный скворечник, напоминающий ветку дерева, соединяет балкон вашей комнаты с зеленой зоной снаружи.
Пятизвездочный скворечник!
Ищете скворечник на любой сезон? Начните работу над этим пятизвездочным проектом скворечников, как уникальные конструкции и выкройки скворечников 2017 года.Вы можете легко повесить его у себя дома, когда начнутся праздники.
Стильный дизайн скворечников!
Стиль скворечника действительно важен! Эти стильные скворечники из печатных листов с цветочным принтом подходят для птиц, но полны творчества и глубоких размышлений.
Античный скворечник!
Скворечник для мелких птиц. Это стильное дополнение в винтажном стиле для каждого открытого пространства с одной большой дырочкой наверху.
Сумасшедший скворечник!
Боже мой! Праздничный подарок птице! Если в вашем саду нет полноценного скворечника, то это решение (сумасшедший скворечник) идеально подойдет вам. Он полностью ручной работы с удобным входом.
Rustic Country Home Скворечник (деревянный узор)
Этот дизайн относится к категории уникальных дизайнов и узоров скворечников и выглядит как настоящий антикварный предмет, но это не так! Вы можете построить этот загородный скворечник из новых деревянных материалов и банки из-под кофе.
Люстра «Скворечник»!
Создайте свой личный скворечник из деревянных горок и добавьте индивидуальности с помощью нескольких настроек. Более того, он простой, симпатичный и универсальный.
Скворечник в церковном стиле!
Церковные домики для птиц известны во всем мире как уникальные конструкции и узоры. Эти дома увенчаны прочным медным шпилем и медным коньком над кедровой черепицей.
Скворечник из бревенчатой хижины!
Привлекайте птиц к себе во двор с помощью удивительной кормушки для птиц из бревенчатой хижины. Этот скворечник украсит ваш двор и станет приютом для всех птиц в вашем районе.
Инновационный скворечник на заднем дворе!
Эта крутая идея скворечника заставит ваших птиц на заднем дворе почувствовать себя королевскими особами. Другими словами, это действительно произведение божественного искусства.
Кардинальный скворечник!
Не стесняйтесь создать этот яркий, уникальный дизайн и узор скворечника для своих родных друзей и добавить декоративности своему двору или саду, раскрасив его монохромным способом.
План скворечника Гнома!
Очаровательно, да! Создавайте уникальные дома для своих пернатых друзей и подарите им вид садовых гномов, чтобы они привлекали внимание.
Современный скворечник!
Не все скворечники должны быть скучными! Сделайте так, чтобы ваши птицы чувствовали себя в безопасности и счастливы в этом современном доме. Разместите его на открытом воздухе, чтобы использовать его максимально эффективно.
Скворечник-сарай!
Ищете уникальные конструкции и выкройки скворечников, которые легко привлекают внимание всех ваших пернатых друзей? Этот вроде бы нормально сделать из новых материалов, но придайте ему старый вид, используя технику сарая.
Осенний скворечник!
Этот план птичьего домика создает красивый осенний скворечник как внутри, так и снаружи вашего прекрасного дома. Высеченные осенние листья с желтыми цветками привлекают внимание на скворечнике. Согласование деревянных стенок и крыши скворечника.
Необычный дизайн скворечника!
Простой не всегда лучше, иногда действительно `вычурные скворечники тоже хорошо смотрятся.Этот скворечник с двумя отверстиями в форме сердца и цветочными принтами смотрится потрясающе.
Скворечник деревенской церкви!
Чтобы придать вашему саду особый вид в этом весеннем сезоне, добавьте красивый скворечник в форме деревенской церкви с высокой крышей и цепью, висящей на вершине, в качестве уникального дизайна и узоров скворечников 2017 года.
Цветочный декор скворечника!
Вау, этот симпатичный скворечник с цветочными шаблонами на серой основе.Вы можете использовать узорчатые цветочные узоры, чтобы покрыть окно и входную дверь. Не забудьте согласовать это с вашим нарисованным дизайном.
Скворечник «Весеннее цветение»!
Украсьте свой сад этим красивым весенним цветущим скворечником. Великолепный желтый ярко-желтый цвет — отличный способ добавить весенний колорит вашему дому и украсить его прекрасными розовыми цветами.
Викторианский скворечник!
Вся конструкция сделана из дерева и предназначена для крепления на дереве.Это прекрасное дополнение к саду по вкусу и потребностям.
Деревянный скворечник из поддонов!
Да! Скворечники уникальной формы легко сделать из слоев досок, взятых из поддонов для бесплатной доставки.
Загородный скворечник в деревенском стиле!
Добавьте нотку деревенской ностальгии в любой двор или веранду. Этот уникальный дизайн и узор скворечника изготовлен из старой переработанной выветривания «сарайной древесины» и может быть легко установлен в любом месте.
Красивый синий скворечник!
Планируете ли вы привнести весенний вид в свое помещение? Выставить этот красивый синий скворечник — отличная идея, потому что птицы любят приходить в разноцветные домики для выполнения различных мероприятий.
Скворечник мечты!
Кому не нравится стильная кормушка? Этот дом мечты отлично подходит для сада каждого и не только привлечет внимание всех птиц, но и сделает ваш сад похожим на сказочный мир.
Пчелиный улей, скворечник!
Ищете забавные, простые и уникальные дизайны и выкройки скворечников? Приветствуйте гнездящихся птиц у себя во дворе, тактично разместив жилища округлой формы. Хорошо! Придайте ему форму улья.
Номерной знак Скворечник!
Создайте индивидуальный скворечник со старым номерным знаком, и вы обнаружите, что это хорошее место, где птицы могут звать себя своим домом.
Итак, если вам интересно, как построить привлекательный скворечник в этом весеннем сезоне для своего заднего двора, и вы ищете увлекательный способ рассказать вашим детям, какие птицы являются родными для вашего района, мы надеемся, что наша огромная коллекция уникальных дизайнов и узоров скворечников добавит красок вашему двору и обеспечит безопасное убежище для дружелюбных летчиков на вашем заднем дворе.Чтобы дизайн оставался простым, мы всегда рекомендуем использовать хозяйственные материалы, чтобы птицы чувствовали себя в безопасности и любили.
Лучшая древесина для скворечников
* Это сообщение может содержать партнерские ссылки. Пожалуйста, ознакомьтесь с моим раскрытием, чтобы узнать больше.Строительство скворечника — отличный проект для знакомства с деревообработкой, а также увлекательный проект для тех, кто знает, что делает.
Самодельный скворечник в вашем саду привлекает птиц, имитируя естественные места гнездования.Чтобы скворечник был максимально удобен для птиц, нужно использовать подходящие материалы.
Использование дерева — популярный выбор для изготовления скворечника, так как оно обеспечивает хорошую изоляцию, а некоторые виды древесины обладают естественной атмосферостойкостью и долговечностью.
Какую древесину лучше всего использовать для скворечника? Лучшие породы дерева для скворечника — сосна, кедр и дуб. Эти породы дерева хорошо держатся на улице, естественно гармонируя с окружающей средой. Использование любого из этих трех поможет вам сделать привлекательный и долговечный скворечник, который станет безопасным местом для гнездования птиц.
Для скворечника нужно использовать подходящую древесину. Если вы этого не сделаете, он, вероятно, не прослужит долго, если его оставить на улице, и он не будет соответствовать потребностям птиц в этом районе.
Правильная древесина для скворечникаСосна, кедр и дуб — лучшие варианты для изготовления скворечника. Они подходят для разных бюджетов и сред. Понимая преимущества использования каждого вида древесины, вы сможете лучше решить, какой из них вам подходит.
Вы также захотите узнать, какие породы дерева и другие материалы безопасны для птиц.
Сосна — Сосна — это недорогая древесина , которая является хорошим вариантом, если вы строите с ограниченным бюджетом. Он не набухает и не сжимается при высоких температурах, поэтому скворечники из сосны могут выдерживать тепловые волны и другие экстремальные температуры на открытом воздухе. Сосна также является прекрасным вариантом для украшения, так как она хорошо впитывает краску, поэтому скворечник можно легко раскрасить.
Кедр — Кедр обеспечивает хорошую изоляцию , а это означает, что птицы могут согреться зимой, когда находятся в своем скворечнике.В отличие от большинства пород дерева, кедр не меняет размер во время дождя, поэтому размеры никогда не меняются, и птицам всегда будет место для передвижения в скворечнике. Кедр также устойчив к повреждениям насекомыми , что делает его идеальным для использования на открытом воздухе.
Дуб — Дуб — это древесина, которую следует использовать, если вы хотите, чтобы ваш скворечник выделялся, но не хотите использовать краски или лаки на химической основе. Дуб имеет потрясающий естественный вид , который может варьироваться от светло-красного до тигрово-желтого.
Эти три породы дерева идеально подходят для изготовления скворечника. Итак, решите, какой из них лучше всего подходит вам, и выберите из списка ниже, чтобы начать!
Лучший лес для скворечниковИтак, есть три отличных варианта для скворечников, но это по-прежнему оставляет вам множество вариантов. Мы изучили одни из лучших пиломатериалов:
Читайте подробнее о каждой из 7 наших любимых досок. Мы уверены, что один из них подойдет для вашего следующего скворечника.
1.
Доска из сосны Thunderbird ForestПроверить текущую цену на Amazon
Эта необработанная сосна — идеальный стартовый блок для создания скворечника. Это обычная доска, которую можно использовать как для внутренних, так и для наружных работ. Он будет противостоять погодным условиям на улице, особенно если обработать (нетоксичными материалами) или покрасить после завершения строительства скворечника.
Доски имеют размер 1 дюйм x 12 дюймов x 6 дюймов, и это отличное дерево, которое можно использовать для постройки скворечника и держать под рукой на случай, если вам понадобятся другие работы по дереву или плотницкие работы в домашних условиях.
Это недорогой вариант, подходящий для более теплого климата. Так что выбирайте эту древесину, если птицы, которых вы хотите привлечь к себе друзей, более теплых погодных условий.
2. Пустая ручка «Испанский кедр» (упаковка из 10 шт.)Проверить текущую цену на Amazon
Доски из испанского кедра в этой упаковке из 10 имеют потрясающие цвета и сделают готовый скворечник таким красивым и естественным.
Благодаря своей естественной изоляции он согреет птиц внутри, а также противостоит набуханию или усадке при различных температурах.
Каждая планка имеет размеры inch дюйма x inch дюйма на 5 дюймов. Поэтому вам нужно будет немного спланировать, чтобы определить, хватит ли 10 досок в наборе для скворечника, который вы хотите сделать. Или вы можете просто использовать его как красивый акцент.
Когда ваш скворечник готов, не нужно красить дерево. Дерево уже естественно имеет красивую отделку.
3. WOODNSHOP
Доска из красного дубаПроверить текущую цену на Amazon
Доски из красного дуба имеют красноватую отделку, которая добавляет тепла дереву и, следовательно, всему готовому изделию.
Вы можете заказать древесину других размеров, чтобы упростить создание скворечника и работу с ним.
Эта древесина имеет великолепную отделку с естественным, теплым видом. Он будет хорошо работать как скворечник, будучи прочным и устойчивым к погодным условиям, требует минимальной обработки и химикатов.
Он подходит для многих типов окружающей среды и станет излюбленным местом гнездования птиц в вашем саду!
4.
P. Graham Dunn Натуральное дерево СоснаПроверить текущую цену на Amazon
Это более дорогой сорт сосны, и даже несмотря на то, что он был обрезан и обработан для использования в искусстве, это отличная древесина для рубки и постройки скворечника.
После постройки скворечника вы можете покрасить дерево, окрасить его или оставить ровным. Его размеры 17,5 x 0,65 x 21 дюйм. Так что вам, вероятно, придется покупать несколько штук в зависимости от размера скворечника, который вы хотите сделать.
Он сделан из твердой высушенной сосновой древесины, а необработанная поверхность — это чистая среда, которую вы можете покрасить или украсить, чтобы придать ей дополнительный цвет.
Натуральный цвет дерева сам по себе красивый, из него можно сделать отличный скворечник при небольшом бюджете или в более теплом климате.
5.
Woodcraft Испанский КедрПроверить текущую цену на Amazon
Древесина испанского кедра светло-красноватого / темно-коричневого цвета с прямыми волокнами. Древесина имеет размеры ¼ дюйма x 4 дюйма x 36 дюймов, ее хорошо обрабатывают и режут, а это значит, что с ней легко сделать свой скворечник.
Обладает характерным запахом, сильным, но легким. Он невероятно хорошо держится, когда его подвешивают на улице и оставляют на волю, и противостоит повреждению насекомыми.
Этот кедр коричневого цвета с красноватым оттенком и имеет текстуру зерна, похожую на красное дерево. Древесина испанского кедра имеет уникальный теплый вид и обладает всеми необходимыми свойствами для создания отличного скворечника.
6.
Rockler Испанский кедр (поштучно)Проверить текущую цену на Amazon
Это легкое, простое в использовании дерево, которое может удерживать влагу, создавая естественный хьюмидор. Это означает, что он хорошо помогает птицам зимой оставаться в тепле.
С тонкими досками легко работать, а древесина имеет множество различных применений. Из него получится скворечник, который не только прекрасно смотрится в саду, но и служит местом гнездования птиц.
В упаковке находится один кусок дерева размером 5 дюймов x 48 дюймов x дюйма. Так что вы сможете придумать, что вам нужно для вашего скворечника.
7.
Доска обрезная из белого дубаПроверить текущую цену на Amazon
Пиломатериалы из белого дуба идеально подходят для создания собственного скворечника в саду.Доступны разные ширины, поэтому вы можете сделать скворечник любого размера.
Он имеет очень естественный вид, поэтому вам не нужно слишком много работать с деревом после того, как изделие будет закончено, и оно хорошо держится на открытом воздухе и при воздействии элементов.
Это более светлый, нежный цвет дуба с красивой текстурой, из которого получится замечательный скворечник.
Связанные вопросы Можно ли использовать обработанную под давлением древесину для скворечников?Не рекомендуется использовать пропитанные пиломатериалы для строительства скворечников.Ядовитые химические вещества , которые может содержать обработанная древесина, могут предотвратить проблемы с насекомыми или древесную гниль, но также вредны для птенцов .
Вы не хотите создавать скворечник только для того, чтобы создать вредную среду для рождения малышей. Лучше не лечить. К тому же натуральное дерево уже отлично смотрится.
Как привлечь птиц в скворечники?Придать вашему скворечнику естественный вид с помощью дерева — хорошее начало, но для привлечения птиц в скворечники нужно использовать масличных семян подсолнечника .Птицы оценят легкодоступную пищу.
Существуют также специализированные корма, которые используются для привлечения определенных птиц, поэтому стоит провести небольшое исследование, чтобы узнать, какие птицы встречаются в вашем районе и какие из них вы хотите привлечь.
Вы кладете что-нибудь в скворечник?Не рекомендуется добавлять какие-либо материалы для гнездования в скворечники, поскольку птицы , вероятно, в конечном итоге удалят весь материал для гнезд , прежде чем они начнут строительство гнезда.



Одна часть делается, как и дно, а с помощью второй создается навес.
Для этого его нужно оплести прочной веревкой;
При этом выбирается сторона с минимальным количеством ветром;
Для лучшего крепежа к задней части скворечника крепится планка.


Хорошо подходит осина. В этой древесине сердцевина часто становится трухлявой с одновременным сохранением целостности наружных слоев.
Ее обрезают так, чтобы лишние части не выступали за уровень контура нижней части.
Такие конструкции сооружаются не выше 1–1,5 м от земли и предназначены для пищух.
Причём задняя доска должна быть выше передней, чтобы крыша опиралась на них под углом. Может иметь и двускатную крышу.
Постепенно это новшество перебралось в Европу, откуда и попало в Россию стараниями Петра I, ценившего всякие забавные вещицы.
Кстати, остальные части можно крепить на столярный клей.
Вклеиваем палочку-шесток.

Установите жердочку.


Для этого в крышке от бутылки сверлим две небольшие дырки, через которые продеваем проволочку и тщательно закручиваем концы.
Высота 30 см, размеры 10 х 10 см, леток 3–4 см.


Крепим дно.

Маленькими гвоздями прибиваем его по окружности, чуть «утопив» в глубину, чтобы у домика был навес.


